3 bed House - Detached For Sale
Pianoforte Road, Roade, Northampton - £375,000

Bed icon  3  Bath icon  2  Reception icon


What's great...

Oscar James are delighted to market this stunning three bedroom detached family home, finished to an extremely high standard located in the sought after village of Roade.

Roade is a beautiful village with local primary school, independent shops, restaurants and village pub. The location of this property is fantastic with a short drive to A508 and great commuting links to M1.

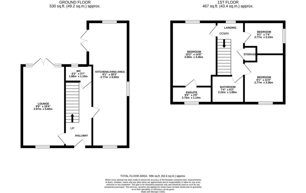
On entering this family home, you are welcomed into an entrance hall with door to a spacious lounge with patio doors, downstairs w/c, modern kitchen/diner with integrated appliances and further patio doors to the rear garden.

The first floor accommodation comprises of; three good-sized bedrooms, the master with en-suite, as well as a three-piece family bathroom.

Externally this home benefits from off-road parking for two vehicles leading to a convenient single garage which has been part converted for current use as a home gym. To the rear you will also find an enclosed and low-maintenance garden with patio area and is mostly laid-to-lawn.

To book in for your internal viewing, please contact Oscar James Northampton.

Image of tom with his camera

Benefit from our professional
marketing package

Redkey office

For further details on this 3 bed House - Detached For Sale in Northampton, call
01604 622 722
Ref: 34301927

ARRANGE A VIEWING

Book a viewing or enquire about this property

Simply fill out the form below or alternatively call us on 01604 622 722 Ref: 34301927