3 bed House - Detached Sold
Isemill Road, Burton Latimer - Offers In Excess Of £410,000

Bed icon  3  Bath icon  1  Reception icon


What's great...

An outstanding three bedroom, detached home constructed by highly reputable builders 'Grace Homes'. A must view property.

Situated on the edge of Burton Latimer, close to all local amenities and excellent road links close by.

Grace Homes properties really are a cut above the rest, from the underfloor heating to the solid oak doors, if your looking for class then look no further.

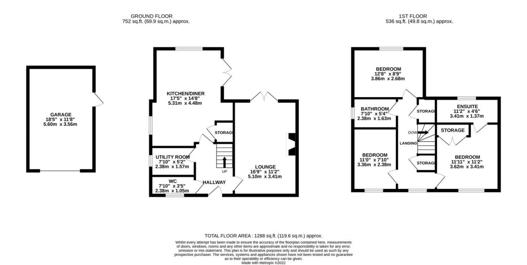
With internal accommodation comprising; entrance hall, lounge with French doors leading off to the rear garden, fitted kitchen with a range of integrated appliances and dining area with separate utility room and ground floor WC. The property also has underfloor heating.

On the first floor you will find three double bedrooms and family bathroom. The master bedroom also has ensuite facilities and built in wardrobes.

Outside there is a rear garden with access to the oversized single garage with an up and over door, plus a courtesy door from the garden, and rear gate that leads to a generous driveway providing further off road parking.

** As the property is currently rented the landlord has suggested that they would look to get the property re-painted prior to completion **

Image of tom with his camera

Benefit from our professional
marketing package

Redkey office

For further details on this 3 bed House - Detached Sold in Burton Latimer, call
01536722222
Ref: 31592986

ARRANGE A VIEWING

Book a viewing or enquire about this property

Simply fill out the form below or alternatively call us on 01536 722 222 Ref: 31592986