2 bed House - Detached Sold Subject to Contract
Mallard View, Billing Aquadrome - £12,000

Bed icon  2  Bath icon  1  Reception icon


What's great...

Oscar James welcome to the market this modern two bedroom park home situated within the Meadow Bay area within Billing Aquadrome. This holiday resort is located in a picturesque woodland area and as an owner you’re also welcome to use the extensive facilities on offer such as on site entertainment, various dining options, indoor swimming, a local marina and many more.

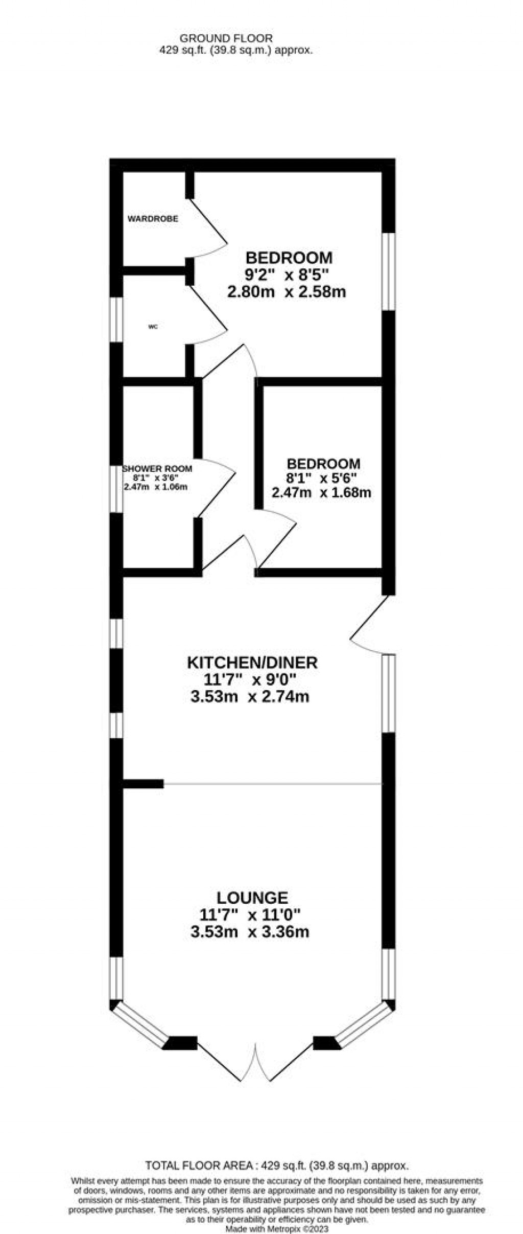
The home itself offers great living accommodation throughout comprising a large open plan lounge boasting French doors leading out - perfect for summer! A fully fitted modern kitchen with a dining area. The inner hall leads through to shower room and both bedrooms where the master benefits from not only an ensuite but also built in wardrobes.

There is plenty of communal parking for owners and visitors to use, making this the perfect holiday home for all.

Image of tom with his camera

Benefit from our professional
marketing package

Redkey office

For further details on this 2 bed House - Detached Sold Subject to Contract in Billing Aquadrome, call
01604 622 722
Ref: 32756208

ARRANGE A VIEWING

Book a viewing or enquire about this property

Simply fill out the form below or alternatively call us on 01604 622 722 Ref: 32756208