4 bed House - Detached Sold
The Old Bakehouse, Oundle Road, Weldon, Corby - £630,000

Bed icon  4  Bath icon  4  Reception icon


What's great...

"The Old Bakehouse, your DREAM HOME"

NO ONWARD CHAIN.

Welcome to this amazing, charming, period, Grade II Listed house located on Oundle Road in the picturesque Northamptonshire Village of Weldon.

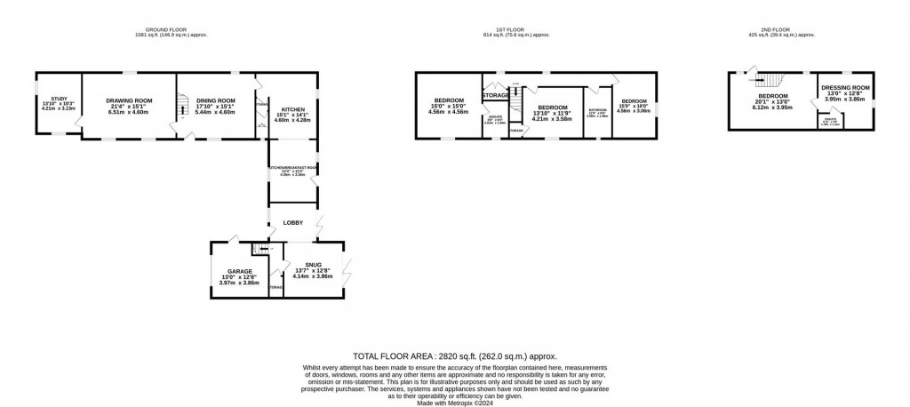
This property boasts four spacious bedrooms and three modern bathrooms, providing ample space for a growing family or those who love to entertain guests.

This is a wonderful example of a stone built, period property, far too amazing to fully describe here, as this is a must see home.

As you step inside, you'll be greeted by a delightful lobby that leads to four inviting reception rooms that offer versatility and comfort. Whether you fancy a cosy night in by the fireplace or hosting a dinner party with friends, this property caters to all your needs.

This home has retained all its ambiance of the numerous period features combined with a modern contemporary twist.

An ample rear garden continues the theme of this delightful property, social areas, patio and lawn complete this wonderful outside space.

Located in a tranquil neighbourhood, this house offers a perfect blend of suburban serenity and modern living. With easy access to local amenities, schools, and green spaces, you'll find everything you need just a stone's throw away.

One of the standout features of this home is the parking provision for up to five vehicles, ensuring convenience for you and your guests. Say goodbye to the hassle of searching for parking spaces - you'll have plenty of room right at your doorstep.

Don't miss the opportunity to make this house your home. Book a viewing today and discover the endless possibilities that await you at this delightful property on Oundle Road.

Image of tom with his camera

Benefit from our professional
marketing package

For further details on this 4 bed House - Detached Sold in Corby, call
01536 400 900
Ref: 33291983

ARRANGE A VIEWING

Book a viewing or enquire about this property

Simply fill out the form below or alternatively call us on 01536 400 900 Ref: 33291983