3 bed House - Detached Sold
Stanwell Way, Wellingborough - £280,000

Bed icon  2  Bath icon  1  Reception icon


What's great...

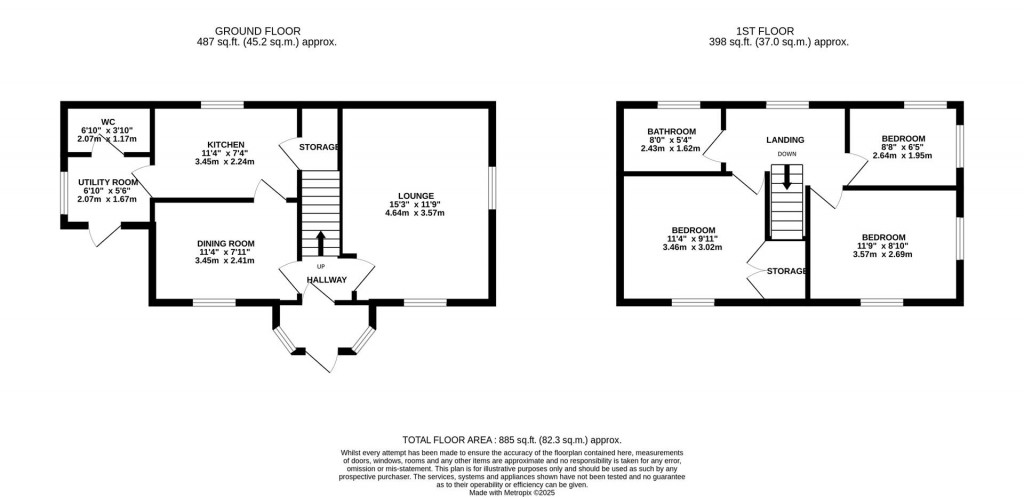
Nestled in the desirable area of Stanwell Way, Wellingborough, this charming three-bedroom detached home offers a perfect blend of comfort and convenience. The property boasts two spacious reception rooms, providing ample space for both relaxation and entertaining. Set on a corner plot, it features a modest courtyard rear garden, ideal for enjoying the outdoors, while the generous frontage enhances the home's appeal.

The accommodation includes three well-proportioned bedrooms, making it an excellent choice for families or those seeking extra space. With two water closets, morning routines are made easy, ensuring that everyone has their own space. The property also benefits from a garage and off-road parking, providing practical solutions for your vehicle needs.

One of the standout features of this home is that it comes with no onward chain, allowing for a smooth and efficient purchase process. Additionally, its prime location means you are just a stone's throw away from local conveniences and beautiful parkland, perfect for leisurely strolls or family outings.

This delightful detached house is an excellent opportunity for those looking to settle in a welcoming community while enjoying the comforts of modern living. Don't miss the chance to make this lovely property your new home.

Image of tom with his camera

Benefit from our professional
marketing package

For further details on this 3 bed House - Detached Sold in Wellingborough, call
01933 830 300
Ref: 33756262

ARRANGE A VIEWING

Book a viewing or enquire about this property

Simply fill out the form below or alternatively call us on 01933 830 300 Ref: 33756262