Land Sold Subject to Contract
The Promenade, Wellingborough - £350,000

Bed icon  0  Bath icon  0  Reception icon


What's great...

A large individual building plot, very quietly situated in 'The Promenade', the best residential area of Wellingborough, one of the last plots available in this prestigious area. A quiet wonderful plot, ideal for a developer or self-builder to construct the home of their dreams. 

The Promenade comprises of very large Victorian houses, which originally would have been set upon wooded plots of up to one acre. Over the last 50 years, these plots have been divided and very many stunning, contemporary homes have been developed. 

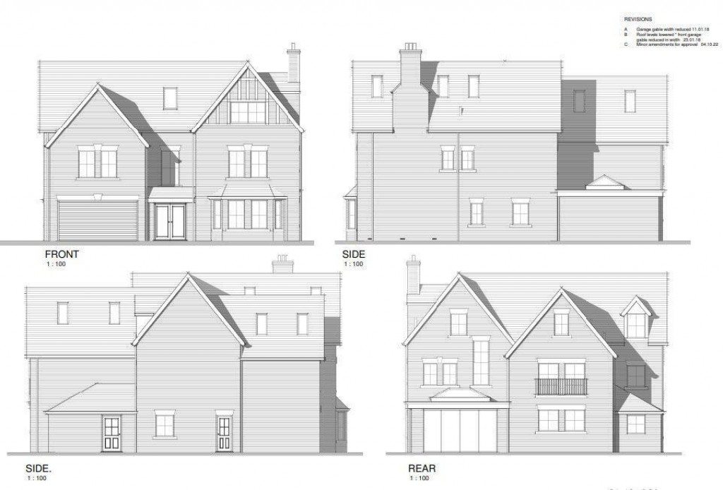
Full planning permission was granted by North Northamptonshire Council in 2022. The planning number is NW/22/00798/VAR. Please visit the councils planning portal to see full details of the proposed dwelling. Planning is for an extremely spacious property spanning across approx. just over 4000 sq.ft and spread over three floors

Approached via its own dedicated driveway, through the existing gates to number 26, (number 26 will create a new driveway separate to the new dwelling).

The plot measures 75.1m in length and 16.8m in width this measurement should be checked by any prospective purchaser and clarified prior to making a financial commitment. Very quietly situated with high quality properties to either side and Glamis Wood to the rear. 

Please note: The successful purchaser will be responsible for erecting a high quality feather edged fence or wall on the boundary with the existing property. 

All services will be available in the road at the front of the property, it may be possible for the building contractor to access the services from the existing property at 26, and this should be checked prior to the successful purchaser making any financial outlay.

Image of tom with his camera

Benefit from our professional
marketing package

For further details on this Land Sold Subject to Contract in Wellingborough, call
01933 656 964
Ref: 33879151

ARRANGE A VIEWING

Book a viewing or enquire about this property

Simply fill out the form below or alternatively call us on 01933 656 964 Ref: 33879151