1 bed Bungalow Sold Subject to Contract
Windmill Lane, Raunds - Offers In Excess Of £205,000

Bed icon  1  Bath icon  2  Reception icon


What's great...

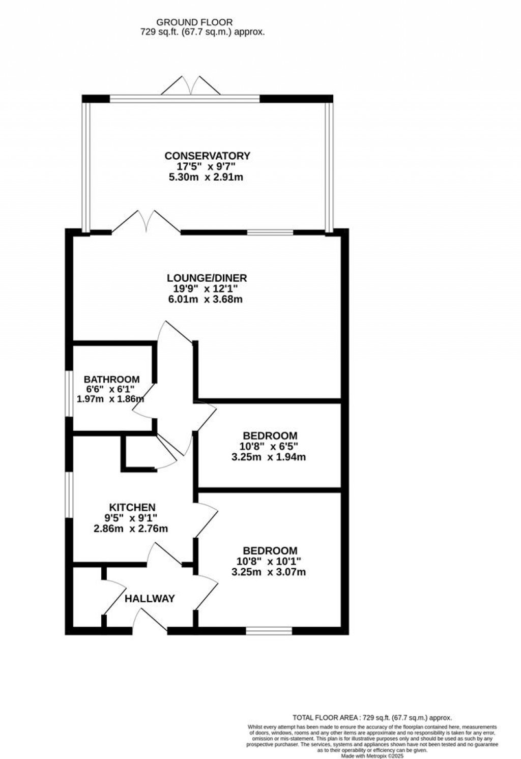
Located in the popular market town of Raunds, this semi-detached bungalow has excellent road links nearby. Offered to the market with no upper chain, this is a fantastic opportunity for a variety of buyers as has served as a brilliant investment for many years.

The accommodation comprises an entrance hall leading into a fitted kitchen, which in turn opens into a spacious lounge/diner. Originally designed as a two-bedroom property, a wall has been removed to create a generous open-plan living area. However, this could easily be reinstated to provide an additional double bedroom if required. You also have a bathroom comprising a three piece suite.

A standout feature of this home is the large conservatory, offering a bright and versatile extra reception room.

There is currently one bedroom, plus an additional room ideal for use as a second bedroom, home office, or hobby space.

Externally, the property boasts a rear garden mainly laid to lawn, with side access leading to a driveway and a single garage, offering convenient off-road parking and storage.

Image of tom with his camera

Benefit from our professional
marketing package

For further details on this 1 bed Bungalow Sold Subject to Contract in Wellingborough, call
01933 656 964
Ref: 34092705

ARRANGE A VIEWING

Book a viewing or enquire about this property

Simply fill out the form below or alternatively call us on 01933 656 964 Ref: 34092705