3 bed House - Semi-Detached Let Agreed
Wolfe Close, Kettering - £1,300pcm
(fees apply)

Bed icon  2  Bath icon  1  Reception icon


What's great...

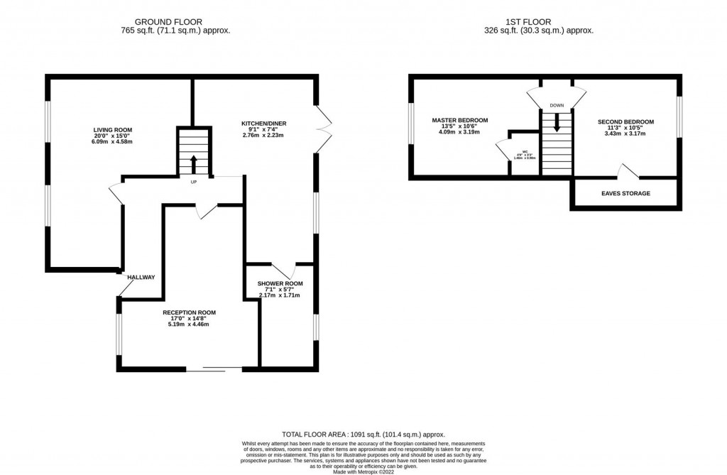
Nestled in the sought-after Ise Lodge estate in Kettering, this charming semi-detached dorma bungalow situated on a corner plot, is the making of a perfect family home.

The location is particularly advantageous, being close to local amenities, transport links, and reputable schools, making it an ideal choice for families and commuters alike.

The property offers a large living area, spacious kitchen /diner with built in appliances, three well-proportioned double bedrooms and two bathrooms spread across both ground and first floors.

A feature of this property is the extensive panoramic garden, perfect for outdoor dining and entertaining, The corner plot enhances the sense of privacy and space, making it a perfect retreat.

For those with vehicles, the property includes off-road parking for one vehicle, along with a single garage to the rear.

Available NOVEMBER

Council Tax Band: C
EPC: C

Image of tom with his camera

Benefit from our professional
marketing package

Redkey office

For further details on this 3 bed House - Semi-Detached Let Agreed in Kettering, call
01536 415 777
Ref: 34126114

ARRANGE A VIEWING

Book a viewing or enquire about this property

Simply fill out the form below or alternatively call us on 01604 622 722 Ref: 34126114