3 bed House - End Terrace For Sale
Sackville Street, Kettering - £180,000

Bed icon  1  Bath icon  2  Reception icon


What's great...

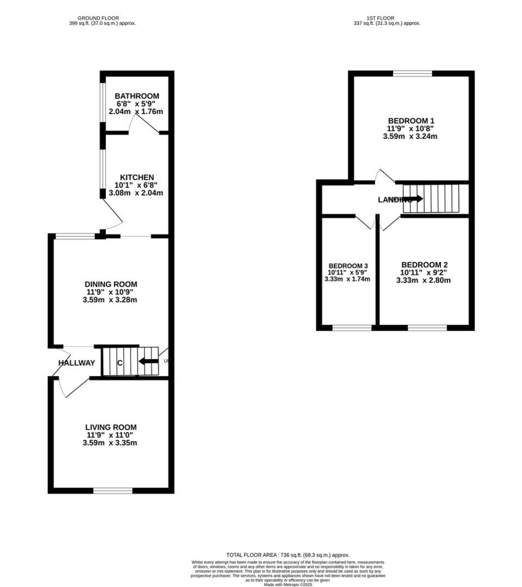
A three bedroom end of terrace home situated close to the Kettering town centre and General Hospital.

This property benefits from two separate reception rooms, a lounge to the front is well presented with a dining room to the central area of the home which leads to a modern white fitted kitchen and three piece family bathroom on the ground floor.

To the first floor there are three good size bedrooms.

The property benefits from gas radiator heating and UPVc double glazing and courtyard garden to the rear with brick built storage cupboards.

In addition the property can be accessed at the rear by a service road.

Call Oscar James Kettering to make arrangements to view.

Image of tom with his camera

Benefit from our professional
marketing package

Redkey office

For further details on this 3 bed House - End Terrace For Sale in Kettering, call
01536 415 777
Ref: 34179718

ARRANGE A VIEWING

Book a viewing or enquire about this property

Simply fill out the form below or alternatively call us on 01604 622 722 Ref: 34179718