3 bed House - Semi-Detached Sold Subject to Contract
Foundry Avenue, Kettering - £275,000

Bed icon  2  Bath icon  2  Reception icon


What's great...

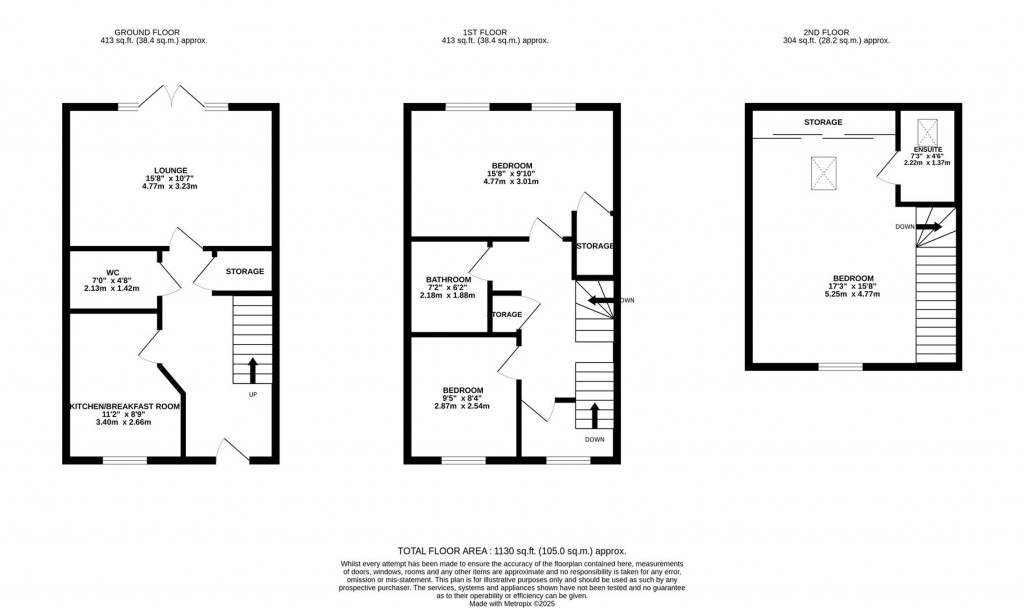
Situated in this highly sought-after location is this stunning three-bedroom three-storey town house.

The property is offered in immaculate condition and occupies a generous size plot. On entering the property, you are greeted by an airy entrance hall with access to the kitchen, W/c, lounge / dining room plus stairs to the first-floor accommodation. The high gloss modern kitchen offers a selection of built-in appliances. There is a good size lounge / dining room to the rear with French doors accessing the rear garden.

To the first floor there are two double bedrooms with the three-piece family bathroom. To the top floor is a great sized master bedroom with the three-piece ensuite shower room.

Outside to the front is a small shrub frontage with the hard standing driveway to the side offering parking for two cars plus gated access to the rear garden.

Contact Oscar James to book your viewing today.

Image of tom with his camera

Benefit from our professional
marketing package

Redkey office

For further details on this 3 bed House - Semi-Detached Sold Subject to Contract in Barton Seagrave, call
01536 415 777
Ref: 34183185

ARRANGE A VIEWING

Book a viewing or enquire about this property

Simply fill out the form below or alternatively call us on 01604 622 722 Ref: 34183185