2 bed House Sold Subject to Contract
Harold Street, Northampton - Offers Over £220,000

Bed icon  1  Bath icon  2  Reception icon


What's great...

Situated just a stone's throw from Northampton Town Centre and Northampton General Hospital, this beautifully presented and recently refurbished two-bedroom home offers stylish, spacious living in an ultra-convenient location.

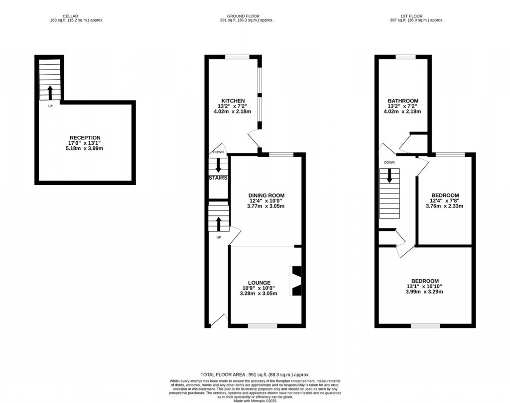
The property features two generous double bedrooms and a large, modern four-piece bathroom suite. The spacious open-plan lounge and dining area is perfect for relaxing or entertaining, and leads through to a contemporary kitchen. One of the standout features is the converted cellar, currently used as a cinema room — a fantastic bonus space for movie nights, gaming, or even a home office.

To the rear, you’ll find an enclosed, low-maintenance garden offering a good degree of privacy — ideal for outdoor dining or simply unwinding in the sun. Permit parking is available for residents, adding convenience in this central location.

Finished to a high standard throughout, this home is ideal for first-time buyers, professionals working at the hospital, or investors looking for a turn-key rental in a sought-after area. With both the town centre and major amenities within easy walking distance, you’ll enjoy the best of town living with everything right on your doorstep.

Early viewing is highly recommended.

Image of tom with his camera

Benefit from our professional
marketing package

Redkey office

For further details on this 2 bed House Sold Subject to Contract in Northampton, call
01604 622 722
Ref: 34194953

ARRANGE A VIEWING

Book a viewing or enquire about this property

Simply fill out the form below or alternatively call us on 01604 622 722 Ref: 34194953