5 bed House - Detached For Sale
Greenbank Avenue, Kettering - Offers In Excess Of £575,000

Bed icon  3  Bath icon  2  Reception icon


What's great...

An exceptional and imposing FIVE bedroom detached period property situated within a very well regarded area of Kettering, close to shops, schooling and the ever popular attraction of Kettering, Wicksteed Park.

This property is presented in superb condition both inside and out having been very carefully maintained by the current owner making this a wonderful family home.

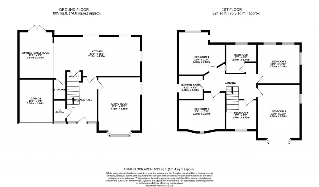
The accommodation is spacious, light and bright throughout and provides versatile space for all to enjoy with a warm and welcoming hallway with cloakroom, leading to a sumptuous lounge room with feature open fireplace with surround and bay window to front, expect to find a stunning solid oak kitchen with numerous storage cupboards, granite work surfaces, integrated dishwasher, wine cooler and butler sink with a family/dining room to the side making this the central hub of the home for all the family to enjoy. A utility cupboard and pantry provide additional storage and facilities.

To the first floor there are five bedrooms, a gorgeous and sizeable master room with dual aspect windows and the four further bedrooms which are all generous in size with the fifth being an ideal dressing room or study. This floor benefits from not only a refitted four piece bathroom with free standing bath but also a refitted shower room in addition, both modern and contemporary in design.

Outside the areas front and rear have been very well maintained with block paving to the front providing off road parking leading to the single garage, astro turf lawn and flower and shrub borders provide attractive cover and excellent curb appeal. The rear garden is impressive, secluded and a great size with lawn and extended patio this is the ideal area for the warmer months to relax and enjoy.

Call the delighted sole agents Oscar James Kettering to make arrangements to view this stunning property.

Image of tom with his camera

Benefit from our professional
marketing package

Redkey office

For further details on this 5 bed House - Detached For Sale in Kettering, call
01536 415 777
Ref: 34211637

ARRANGE A VIEWING

Book a viewing or enquire about this property

Simply fill out the form below or alternatively call us on 01604 622 722 Ref: 34211637