3 bed House - Semi-Detached For Sale
Philips Field Close, Kettering - Price Guide £260,000

Bed icon  2  Bath icon  1  Reception icon


What's great...

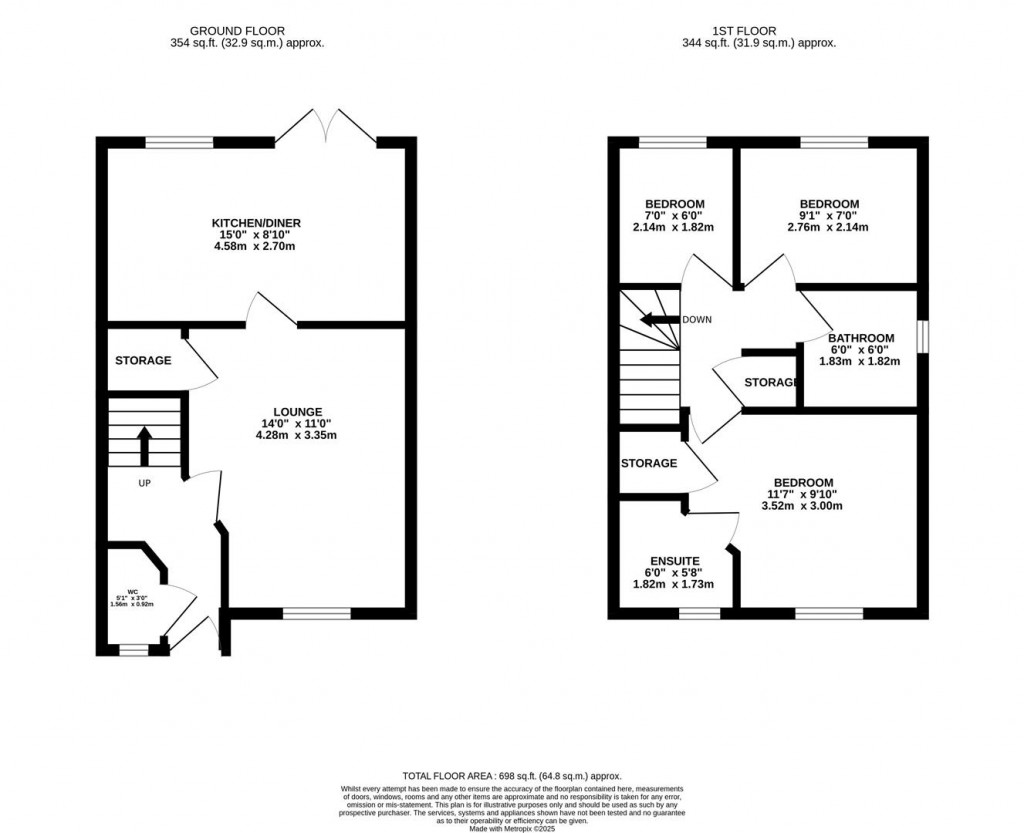
Situated on the sought-after Cranford Chase development in Hanwood Park, Barton Seagrave, this modern three-bedroom semi-detached home offers stylish, well-balanced accommodation and off-road parking for multiple vehicles.

The property features a welcoming entrance hallway, a spacious lounge, and a contemporary kitchen/diner fitted with integrated appliances. There is ample space for a dining table, and French doors open directly onto the rear garden, creating a bright and sociable living space ideal for family life. A convenient ground-floor W/C completes the layout.

Upstairs, the property offers three well-proportioned bedrooms, including a master bedroom with en-suite shower room, a second double bedroom, and a generous single bedroom, along with a modern three-piece family bathroom.

Outside, the rear garden provides a blank canvas—mostly laid to lawn and ready for personalisation—perfect for buyers looking to create their own outdoor space.

An excellent opportunity to purchase a well-presented home on a popular modern development, close to local schools, amenities, and transport links.

Image of tom with his camera

Benefit from our professional
marketing package

Redkey office

For further details on this 3 bed House - Semi-Detached For Sale in Kettering, call
01536722222
Ref: 34222854

ARRANGE A VIEWING

Book a viewing or enquire about this property

Simply fill out the form below or alternatively call us on 01536 722 222 Ref: 34222854