3 bed House - Semi-Detached Sold Subject to Contract
Belton Road, Barton Seagrave, Kettering - Offers In Excess Of £300,000

Bed icon  3  Bath icon  2  Reception icon


What's great...

A fabulous three/four bedroom semi detached town house situated on the very popular Bertone Manor estate with the benefit of a much larger than average rear garden and open outlook to the front.

This property is in excellent condition internally and has the versatility of being used as either a three or four bedroom home depending on preference and requirements.

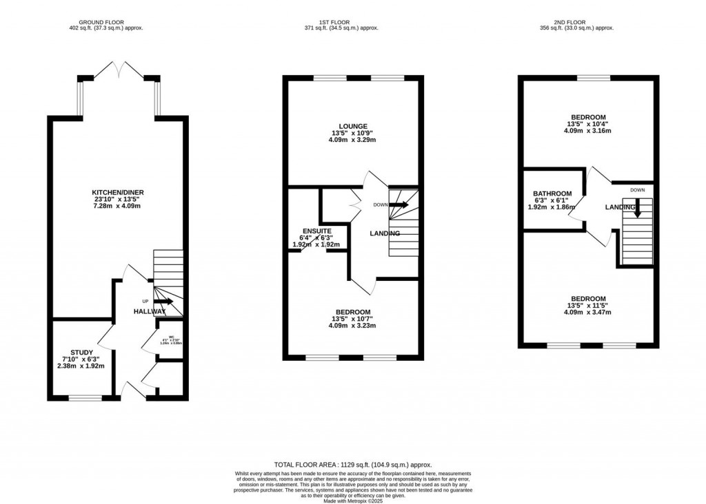
The ground floor accommodation comprises of an entrance hall with storage cupboard and cloakroom, a study and stunning kitchen/diner/family room to the rear, the kitchen is contemporary with high gloss units and integrated appliances including dishwasher, washing machine, fridge/freezer, oven, hob and extractor. The living area has a large bay window with French doors leading out to the garden and feature panelling.

To the first floor there are two very large double bedrooms or a double bedroom and lounge room, the double bedroom benefits from an ensuite shower room. A double storage cupboard and stairs rising to the second floor complete this level. To the second floor there are a further two double bedrooms, both a great size and a family bathroom with shower over the bath services these rooms.

A key feature of this property will be the rear garden, for a newer build home is it particularly large, laid to lawn with patio area, retaining timber fencing and gated access to the side and enjoys a high degree of privacy.

Call the proud sole agents Oscar James Kettering to make arrangements to view this fabulous home.

Image of tom with his camera

Benefit from our professional
marketing package

Redkey office

For further details on this 3 bed House - Semi-Detached Sold Subject to Contract in Kettering, call
01536 415 777
Ref: 34228762

ARRANGE A VIEWING

Book a viewing or enquire about this property

Simply fill out the form below or alternatively call us on 01604 622 722 Ref: 34228762