3 bed House - Semi-Detached Sold Subject to Contract
Linden Avenue, Higham Ferrers - £240,000

Bed icon  1  Bath icon  2  Reception icon


What's great...

Three-Bedroom Semi-Detached Home in the Sought-After Area of Higham Ferrers

Located close to excellent local schools and a range of amenities, this three-bedroom semi-detached house offers an ideal opportunity for first-time buyers. With a highly motivated vendor, early viewing is recommended.

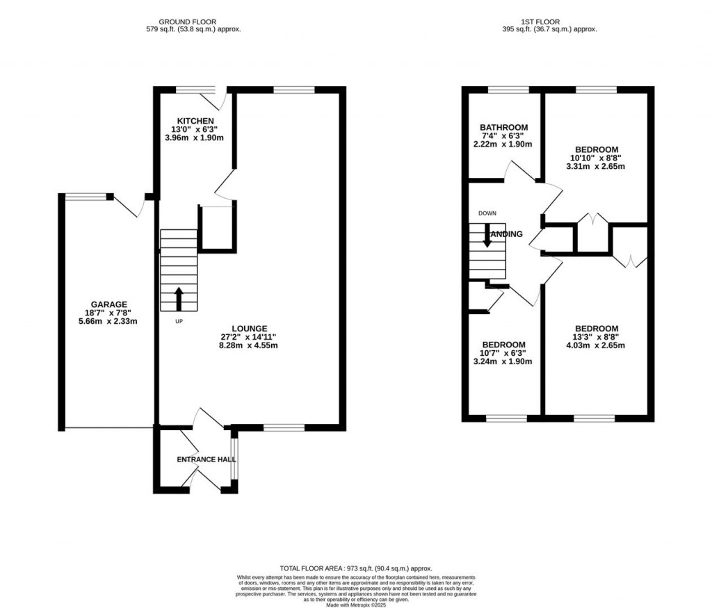
Ground Floor
The entrance hall leads into a spacious lounge/diner, this in turn opens to the kitchen, which is well laid out and functional as is, but also offers fantastic potential to be transformed into an open-plan kitchen/dining space - perfect for modern family living.

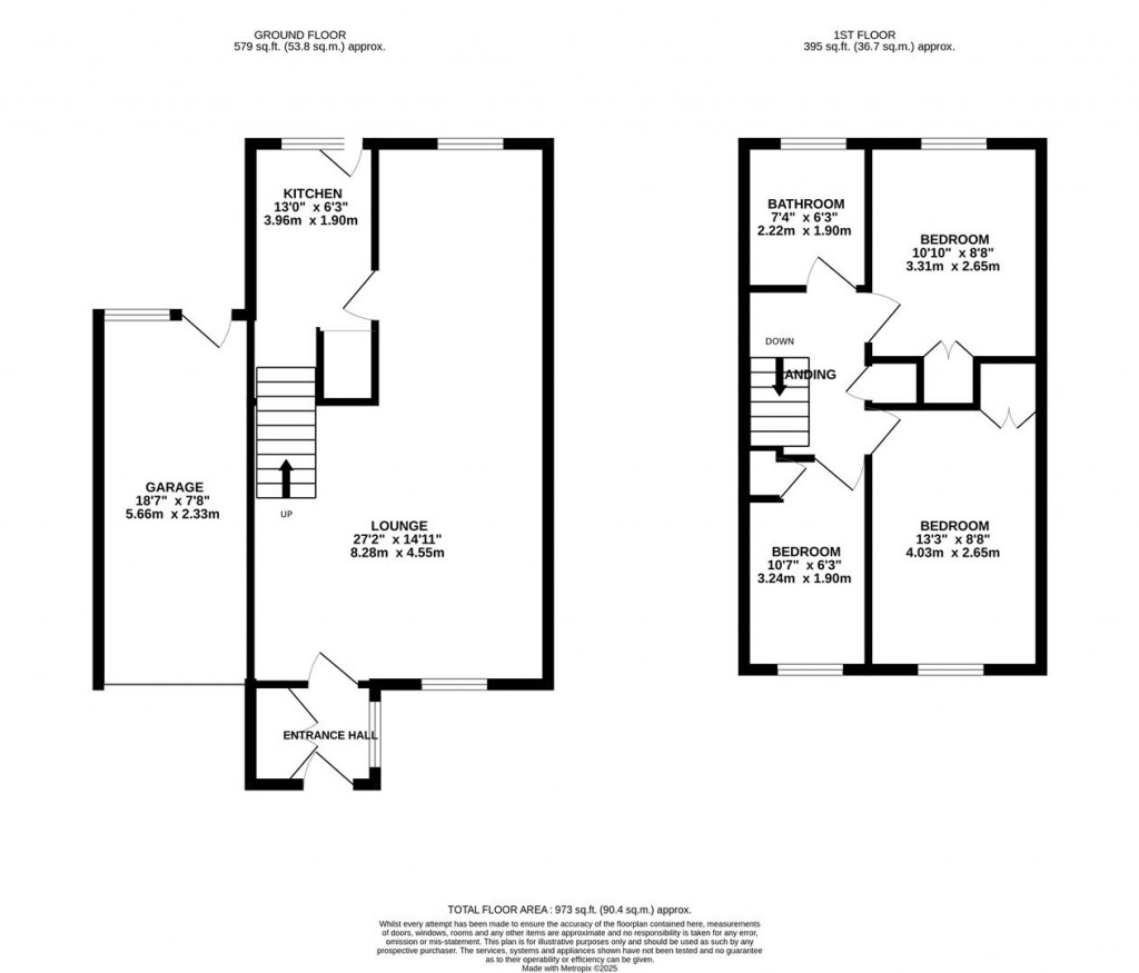
First Floor
Upstairs, you’ll find three bedrooms, each benefiting from built-in storage and the family bathroom.

Outside
The rear garden is mainly laid to lawn, with a decked seating area and to the front of the property you will find off-road parking and access to a single garage.

This lovely home combines great potential with an already practical layout, all in a highly desirable location. Perfect for first-time buyers or young families looking to settle in Higham Ferrers.

Image of tom with his camera

Benefit from our professional
marketing package

For further details on this 3 bed House - Semi-Detached Sold Subject to Contract in Rushden, call
01933 656 964
Ref: 34270980

ARRANGE A VIEWING

Book a viewing or enquire about this property

Simply fill out the form below or alternatively call us on 01933 656 964 Ref: 34270980