2 bed House - Semi-Detached Let Agreed
Main Street, Sudborough, Kettering - Per Month £1,400pcm
(fees apply)

Bed icon  1  Bath icon  2  Reception icon


What's great...

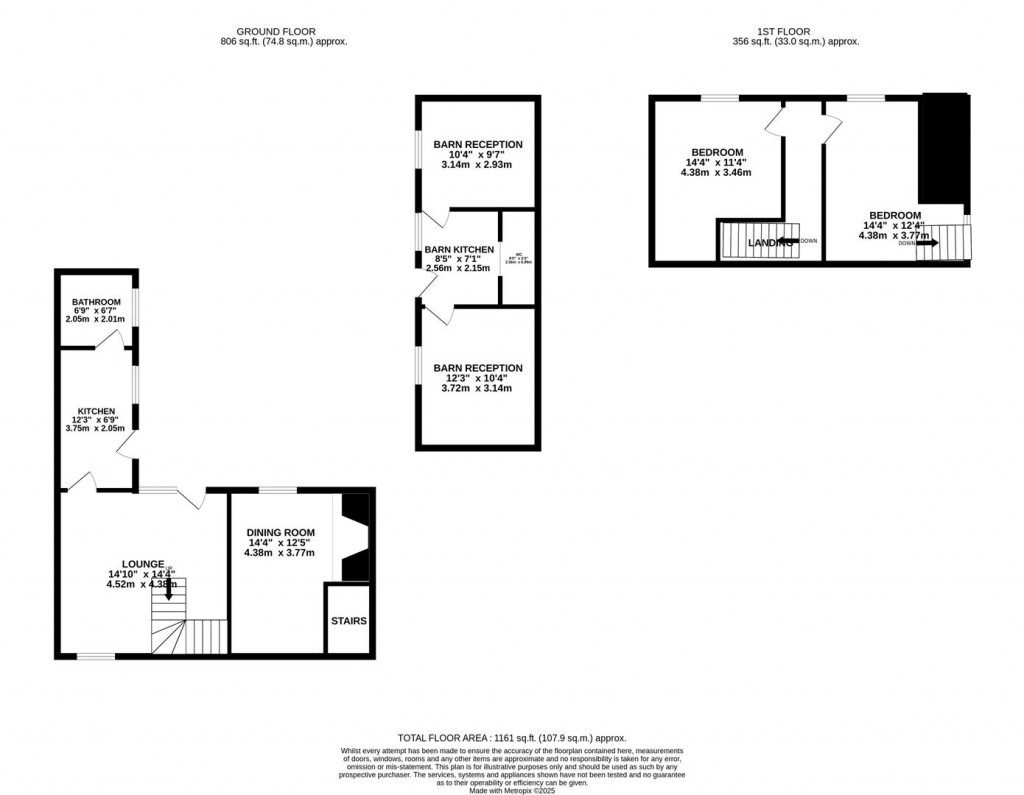
Nestled on the charming Main Street in Sudborough, this delightful semi-detached period cottage offered to the rental market.

The property has gone through a complete modernization to include new ceilings, new kitchen and bathroom plus new floor coverings.

Upon entering, you are welcomed into a cosy reception room that exudes warmth and charm, providing an inviting space for relaxation or entertaining guests. The layout is thoughtfully designed to maximise comfort and functionality, making it a wonderful place to call home.

With two well-proportioned bedrooms, this home is ideal for small families, couples, or individuals seeking a peaceful retreat in a picturesque village setting.

The property features a well-appointed bathroom, ensuring convenience for all residents. The two bedrooms are bright and airy, offering a tranquil atmosphere for restful nights.

One of the standout features of this property is the ample parking space available for up to five vehicles and a large garden with a double garage, a rare find in such a desirable location. This is particularly advantageous for families or those who enjoy hosting visitors.

Sudborough is a quaint village that boasts a strong sense of community, with local amenities and beautiful countryside nearby. The surrounding area offers a variety of outdoor activities, making it perfect for nature enthusiasts.


*** AVAILABLE NOW ***

Council Tax Band: E
EPC Rating: E

Image of tom with his camera

Benefit from our professional
marketing package

Redkey office

For further details on this 2 bed House - Semi-Detached Let Agreed in Kettering, call
01536 415 777
Ref: 34278623

ARRANGE A VIEWING

Book a viewing or enquire about this property

Simply fill out the form below or alternatively call us on 01604 622 722 Ref: 34278623