3 bed Apartment Sold Subject to Contract
King Street, Kettering - Offers In Excess Of £140,000

Bed icon  1  Bath icon  1  Reception icon


What's great...

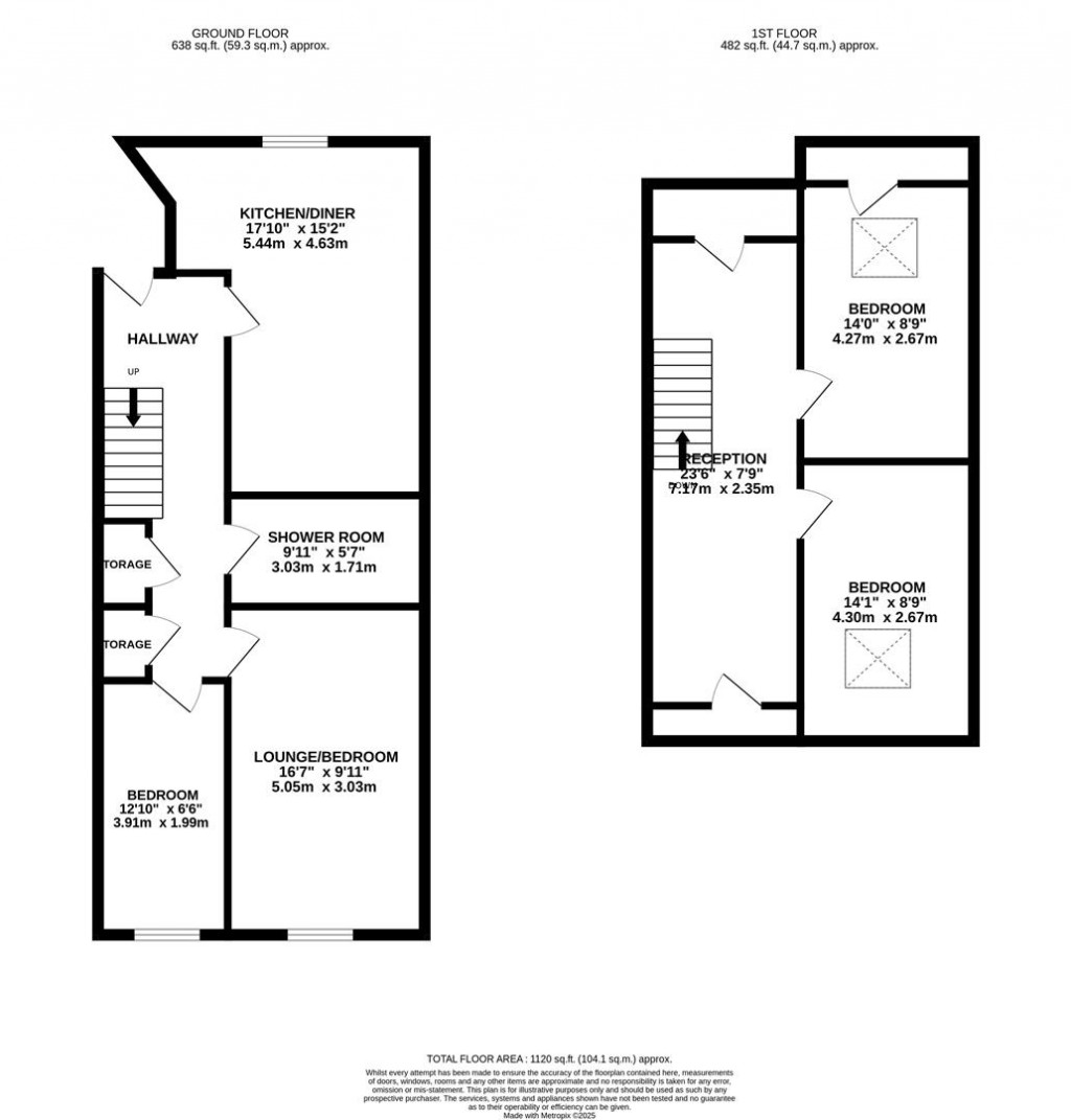
Situated close to the Kettering town centre is this three bedroom apartment which has been thoughtfully converted with impressive space over two floors providing ample room for families or those seeking extra space.

Situated on King Street, you will enjoy the convenience of Kettering's vibrant amenities right at your doorstep, including shops, restaurants, and transport links. This property is a rare find, combining character, space, and a prime location.

As you enter through the hallway, you have a by a wrap-around kitchen, complete with built-in appliances with ample space for dining. The ground floor features a large lounge and one single bedroom, alongside a well-appointed family bathroom that includes a convenient shower cubicle.

To the second floor expect to find a large landing area ideal for using as sitting/study area and two double bedrooms.

Additionally, the apartment comes with allocated parking for one vehicle, a valuable asset in a town centre location.

Call Oscar James Kettering to make arrangements to view.

Council Tax Band: C
EPC Rating: D

Image of tom with his camera

Benefit from our professional
marketing package

Redkey office

For further details on this 3 bed Apartment Sold Subject to Contract in Kettering, call
01536 415 777
Ref: 34278792

ARRANGE A VIEWING

Book a viewing or enquire about this property

Simply fill out the form below or alternatively call us on 01604 622 722 Ref: 34278792