4 bed House - Detached For Sale
Boughton Road, Corby - £350,000

Bed icon  2  Bath icon  2  Reception icon


What's great...

"Views Over The Lakes To Front" with Four double bedrooms- Oscar James are proud to present this beautifully maintained detached family home with some stunning lake views in Oakley Vale, Corby.

Enjoying one of the best outlooks in Oakley Vale, with this exceptional home overlooking the lakes to the front aspect, and sits within a prime location for the area.

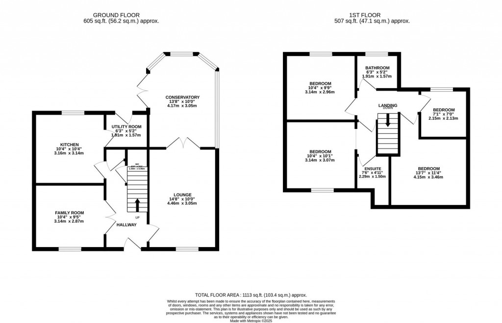
The accommodation briefly comprises a spacious lounge, separate dining room/snug/playroom, modern kitchen, utility room, downstairs WC and a bright conservatory leading onto the rear garden.
Upstairs features four DOUBLE bedrooms – with lake views from the two front rooms – along with two bathrooms, one being a newly refurbished en-suite to the Master.

Outside, the property benefits from a single garage with parking for 3 additional cars.
Th rear is benefitting from a great size rear garden that is very much a blank canvass and rife for that personal touch.

One of the main benefits of this Four DOUBLE bedroom detached residence is the location, being located within walking distance to some great local schooling options, and a whole host of other amenities, such as shops, eateries, green spaces and parks, which makes this property perfect for a family.

The property must be viewed to be fully appreciated in all of its glory! For further details or to arrange a viewing, get in touch with the team at Oscar James Corby!

Image of tom with his camera

Benefit from our professional
marketing package

For further details on this 4 bed House - Detached For Sale in Corby, call
01536 400 900
Ref: 34290486

ARRANGE A VIEWING

Book a viewing or enquire about this property

Simply fill out the form below or alternatively call us on 01536 400 900 Ref: 34290486