5 bed House - Detached Sold Subject to Contract
Avenue Farm Close, Gretton - £675,000

Bed icon  3  Bath icon  3  Reception icon


What's great...

This immaculate five-bedroom detached stone-built home offers generous living space, a sunny south-facing garden. With a detached double garage and ample driveway parking, this property perfectly blends charm, practicality, and contemporary comfort.

Gretton Village itself is a wonderful village, which is well facilitated and has an exceptional sense of community

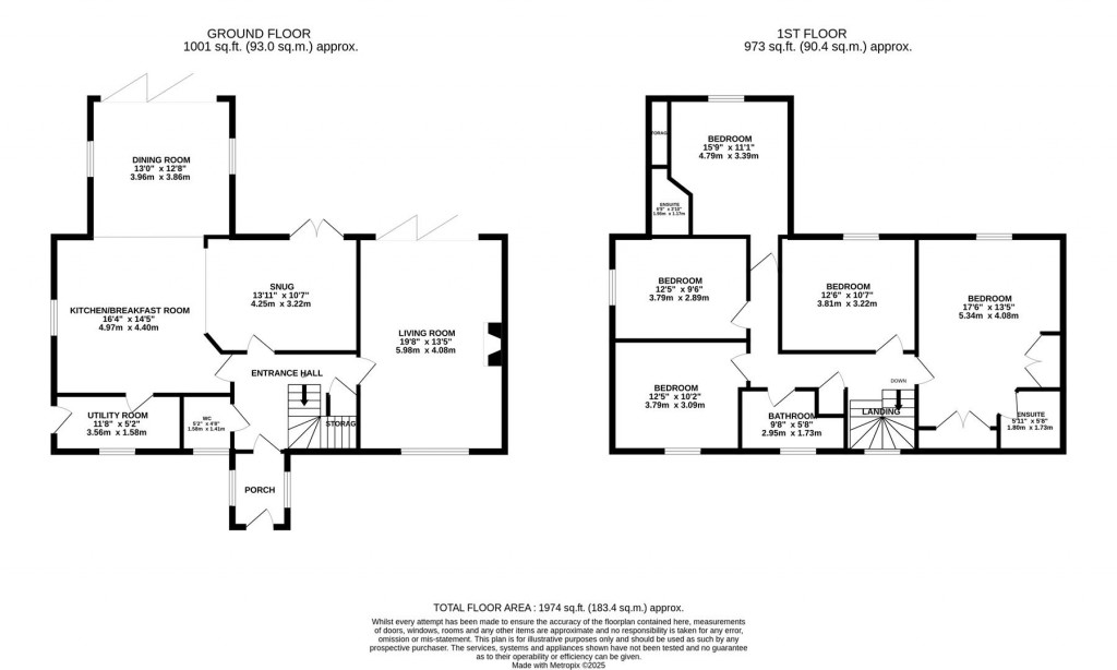
Upon arrival, you’re welcomed by an attractive stone porch complete with an integrated bench and hidden storage – a thoughtful touch that sets the tone for the rest of the home. The spacious hallway features two large storage cupboards and a stylish WC, leading you through to the main living areas.

At the heart of the home is the stunning kitchen/diner/family room – designed for modern family life and effortless entertaining. This bright and airy space flows seamlessly into the dining area, where bi-fold doors open directly onto the south-facing garden, creating a wonderful connection between indoors and out. Adjacent to the kitchen is a versatile family room too, with French doors to the rear. There is also a practical utility room.

The beautifully proportioned sitting room enjoys views over the front of the property, with bi-fold doors opening onto the outdoor patio. A gas stove fireplace adds warmth and character, making this an inviting space for both summer gatherings and snug winter evenings.

Upstairs, there is FIVE generous DOUBLE bedrooms offering plentiful space & great for families. The master suite features built-in wardrobes and an en-suite. The second bedroom also benefits from an en-suite and fitted storage. Three further double bedrooms share a stylish family bathroom, complete with both bath and separate shower.

Externally, there is a south-facing garden, with a great degree of privacy, and views over the fields and cricket pitch adjacent. There is a double detached garage and lots of off road parking to front

For further details, or to view, please contact the team at Oscar James!

Image of tom with his camera

Benefit from our professional
marketing package

For further details on this 5 bed House - Detached Sold Subject to Contract in Gretton, call
01536 400 900
Ref: 34291575

ARRANGE A VIEWING

Book a viewing or enquire about this property

Simply fill out the form below or alternatively call us on 01536 400 900 Ref: 34291575