3 bed House - Detached Sold Subject to Contract
Glastonbury Close, Kettering - Offers In Excess Of £240,000

Bed icon  2  Bath icon  3  Reception icon


What's great...

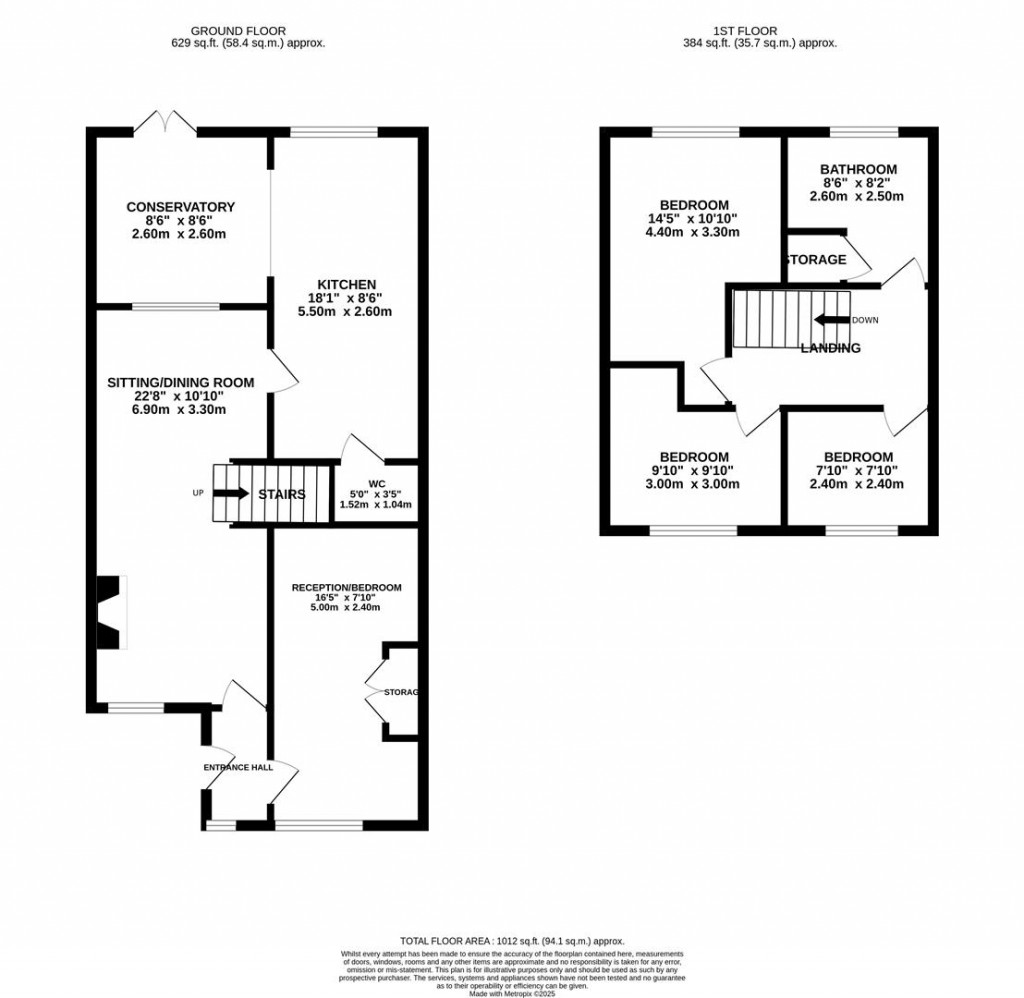
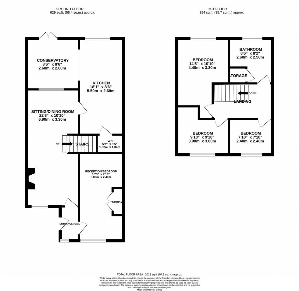
Offered to market with NO ONWARD CHAIN and in a secluded cul de sac position within the popular Ise Lodge estate is this three/four bedroom extended DETACHED home.

This property is an excellent and offers versatile space depending on preference. The ground floor accommodation comprises of an entrance hall, a converted garage which is now an ideal fourth bedroom or study/playroom, a bright and airy lounge/diner leads through to the extended kitchen/diner which has ample storage cupboards and space for the family to enjoy. A cloakroom completes this floor.

To the first floor expect to find three bedrooms and a very good size family bathroom with shower over the bath and storage cupboard.

Outside the front is mainly gravelled to provide easy drive on/drive off parking for at least two vehicles, the garden to the rear is a good size, enclosed and secluded mainly laid to lawn with a patio area and retaining timber fencing.

Call sole selling agents Oscar James Kettering to make arrangements to view.

Image of tom with his camera

Benefit from our professional
marketing package

Redkey office

For further details on this 3 bed House - Detached Sold Subject to Contract in Kettering, call
01536 415 777
Ref: 34293049

ARRANGE A VIEWING

Book a viewing or enquire about this property

Simply fill out the form below or alternatively call us on 01604 622 722 Ref: 34293049