3 bed House - Semi-Detached Sold Subject to Contract
Hayway, Off Honeysuckle Way, Raunds - £285,000

Bed icon  3  Bath icon  1  Reception icon


What's great...

** Open event Saturday 22nd November 11am-1pm. Call to confirm attendance. **

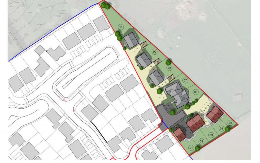
A brand new, three-bedroom semi-detached home, constructed by the locally renowned, award-winning builders Seagrave Developments.

Situated at the end of a quiet cul-de-sac with beautiful countryside views, this exclusive development of just 10 homes is fully built and ready to move into.

Finished to a high specification, the property features oak internal doors, underfloor heating to the ground floor, stainless steel switches and sockets, integrated kitchen appliances, quality sanitaryware in the bathrooms, and porcelain tiled floors to the kitchen and hallways.

The internal accommodation comprises an entrance hall, lounge with French doors leading to the rear garden, kitchen-diner, and a ground-floor WC.

On the first floor, you will find three generous bedrooms and the family bathroom, with the master bedroom benefitting from an en-suite bathroom.

Externally, there is an enclosed rear garden with a patio area and lawn, and to the front, a generous driveway providing off-road parking for several vehicles.

High levels of interest are anticipated in these exceptional homes, which offer superb value for money and a truly wonderful place to call home. Arrange your internal viewing today to avoid disappointment.

Agents note - some pictures used have been edited and are for illustrative purposes only.

Image of tom with his camera

Benefit from our professional
marketing package

Redkey office

For further details on this 3 bed House - Semi-Detached Sold Subject to Contract in Raunds, call
01536722222
Ref: 34304879

ARRANGE A VIEWING

Book a viewing or enquire about this property

Simply fill out the form below or alternatively call us on 01536 722 222 Ref: 34304879