4 bed House - Detached Sold Subject to Contract
Roman Way, Raunds - Offers In The Region Of £325,000

Bed icon  2  Bath icon  1  Reception icon


What's great...

This wonderful four-bedroom detached family home sits proudly on a generous corner plot and offers uncapped potential. Whether you’re looking to reconfigure the current layout or explore the option of a two-storey extension, there are endless possibilities to create your dream home.

Beautifully positioned in a popular area of Raunds, the property is within easy reach of local schools, the High Street and a variety of amenities. Excellent road links are also close by, making it ideal for commuters.

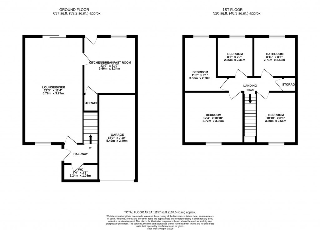
Upon entering, the hallway gives access to a cloakroom and impressive lounge/diner with sliding doors that open directly to the rear garden, bringing the outdoors in. The spacious kitchen provides ample storage, including an understairs pantry. We feel there is also fantastic potential to create a stunning open-plan kitchen/diner spanning the full width of the property if desired.

Upstairs are four bedrooms and a large family bathroom fitted with a four-piece suite.

Outside, the private rear garden wraps around to the side, featuring a block-paved area - previously home to a static caravan - offering multiple uses such as additional parking, an outdoor entertaining space, or potential for further development (subject to planning). To the front, there is a driveway providing off-road parking and access to the garage.

With so much scope to personalise and expand, this property truly must be viewed to be fully appreciated.

Image of tom with his camera

Benefit from our professional
marketing package

For further details on this 4 bed House - Detached Sold Subject to Contract in Raunds Wellingborough, call
01933 656 964
Ref: 34309906

ARRANGE A VIEWING

Book a viewing or enquire about this property

Simply fill out the form below or alternatively call us on 01933 656 964 Ref: 34309906