2 bed House - Mid Terrace For Sale
Roundhill Road, Kettering - Offers In Excess Of £200,000

Bed icon  1  Bath icon  3  Reception icon


What's great...

With character and charm this very good size, two double bedroom bay fronted home is perfectly positioned for both the Kettering town centre and the railway station which is just a short walkaway.

Offered to market with NO ONWARD CHAIN this property is presented beautifully by the current owner and has a spectacular bathroom which anyone would be proud of!

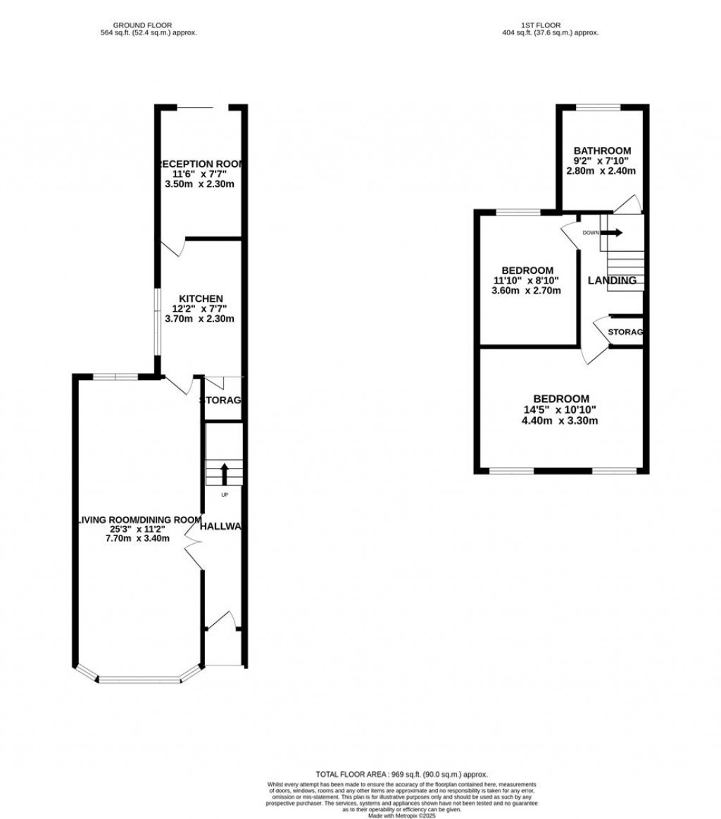
In brief the accommodation comprises of an entrance hall, an impressive, open plan lounge/diner which is bright, airy and large with bay window to front which has a window seat, feature fireplace and double French doors, the kitchen to the rear provides plenty of storage space with an additional pantry cupboard and finally to the very rear of the property on the ground floor expect to find an additional reception room which is perfect for working or to be used as a playroom.

To the first floor the first thing to greet you is the incredible four piece bathroom offering a separate double shower cubicle, WC, vanity sink unit and gorgeous free standing bath, there are two double bedrooms on this floor, the master to the front is a lovely size and benefits from two windows to front making this a bright and light space to relax. A storage cupboard completes this floor.

Outside the garden is secluded with lawn and patio area which will make useful and calming space in the summer months to entertain and enjoy.

Oscar James Kettering are delighted to offer this property to the market, please call to view.

Image of tom with his camera

Benefit from our professional
marketing package

Redkey office

For further details on this 2 bed House - Mid Terrace For Sale in Kettering, call
01536 415 777
Ref: 34311212

ARRANGE A VIEWING

Book a viewing or enquire about this property

Simply fill out the form below or alternatively call us on 01604 622 722 Ref: 34311212