3 bed House - Link Detached Sold Subject to Contract
Steeple Way, Rushden - Offers In Excess Of £300,000

Bed icon  3  Bath icon  2  Reception icon


What's great...

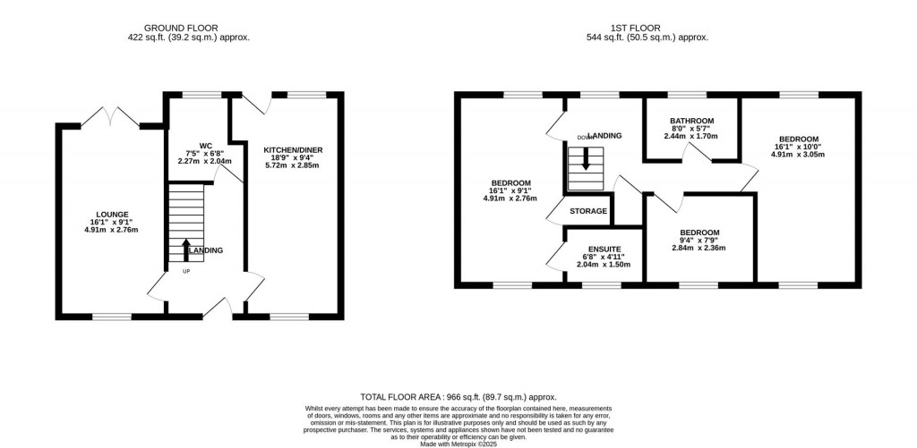
This stunning three-bedroom home, ideally situated on a modern development in Rushden, offering excellent access to major road links. Presented in immaculate, move-in condition throughout, this property combines contemporary style with practical living spaces.

The ground floor features a modern kitchen/diner with direct access to the rear garden. The stylish lounge boasts a bespoke media wall with a feature fire inset along with French doors leading out to the garden. A convenient cloakroom completes the downstairs accommodation.

Upstairs, you’ll find three well-proportioned bedrooms and a family bathroom fitted with a modern three-piece suite. The impressive master bedroom includes extensive built-in wardrobes, a dressing table and an ensuite shower room. Bedroom two also benefits from fitted wardrobes, providing excellent storage.

Externally, the property continues to impress with a good-sized, low-maintenance rear garden offering superb privacy, a generous patio seating area plus gated side access leading to the driveway and garage.

This home is presented in exceptional condition throughout, truly ready to move straight into. Perfect for buyers seeking stylish, modern living in a convenient location.

Image of tom with his camera

Benefit from our professional
marketing package

For further details on this 3 bed House - Link Detached Sold Subject to Contract in Rushden, call
01933 656 964
Ref: 34318082

ARRANGE A VIEWING

Book a viewing or enquire about this property

Simply fill out the form below or alternatively call us on 01933 656 964 Ref: 34318082