4 bed House - Semi-Detached For Sale
Conyger Close, Great Oakley, Corby - Offers In The Region Of £280,000

Bed icon  3  Bath icon  2  Reception icon


What's great...

"Newly Re-furbished To A High Spec!" Offered to the market with NO ONWARD CHAIN- This impressive four-bedroom home offers a newly modernised interior which has been refurbished to a high specification.

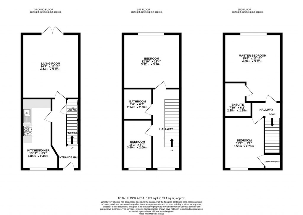
The well laid out floorplan offer spacious living arranged over three well designed floors. The property truly does come beautifully presented throughout, with a full renovation having just taken place, which has improved the property to a much higher level.
Given the spacious rooms on offer, this would work incredibly well as a family home!

To the ground floor the property features a welcoming entrance hall, guest WC, a bright kitchen/breakfast room, and a generous living room with French doors opening onto the rear garden.

The first floor comprises of two well-proportioned bedrooms and a well-finished contemporary family bathroom suite.
The top floor provides two further double bedrooms, with the master bedroom complete with its own newly re-done ensuite shower room, again done to a high quality finish, such as the rest of the property.

Outside, the property benefits from a tidy, low-maintenance rear garden, along with a single garage and parking too.

This is a superb family home offering excellent space and convenience, which really does have that like-new move-in ready feeling to it, especially with the considerable works that have been carried out to completely transform the property to the high quality finish that it now offers.

The property is locacted within the highly sought after and well regarded area of Great Oakley, in Corby. An area known for being well-facilitated and ideal for families given the schooling options nearby. There is plenty of shops, green spaces and even a doctors surgery!

This lovely home truly MUST be viewed to fully appreciated the size and space on offer throughout, and too the fantastic finish that it has- for further details or to arrange a viewing please get in touch with the team at Oscar James Estate Agents in Corby

Image of tom with his camera

Benefit from our professional
marketing package

For further details on this 4 bed House - Semi-Detached For Sale in Corby, call
01536 400 900
Ref: 34320242

ARRANGE A VIEWING

Book a viewing or enquire about this property

Simply fill out the form below or alternatively call us on 01536 400 900 Ref: 34320242