3 bed House - Semi-Detached Sold Subject to Contract
St. Vincents Avenue, Kettering - Offers In Excess Of £240,000

Bed icon  2  Bath icon  1  Reception icon


What's great...

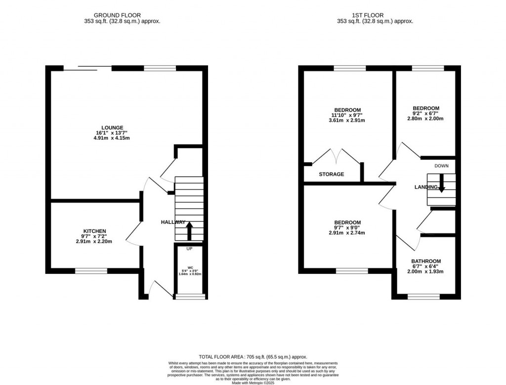
Offered to market with NO ONWARD CHAIN is this very well presented three bedroom semi detached home which is ready to move in by downsizers, first time buyers or maybe a purchase for a rental investment.

The property is in move in condition having been recently re decorated throughout with new flooring fitted. The accommodation comprises of an entrance hall, refitted cloakroom with vanity sink unit, kitchen to front and a large lounge/diner to the rear with patio doors leading out to the garden and storage cupboard.

To the first floor there are three bedrooms, the largest benefits from a fitted wardrobe, a storage cupboard and attractively presented family bathroom with shower over the bath complete this floor.

Outside the garden is a generous size, laid to lawn with patio area and retaining timber fencing. To the front there is ample off road parking and a single garage to the side.

Call the sole selling agents Oscar James Kettering to make arrangements to view.

Image of tom with his camera

Benefit from our professional
marketing package

Redkey office

For further details on this 3 bed House - Semi-Detached Sold Subject to Contract in Kettering, call
01536 415 777
Ref: 34323150

ARRANGE A VIEWING

Book a viewing or enquire about this property

Simply fill out the form below or alternatively call us on 01604 622 722 Ref: 34323150