3 bed House - Semi-Detached For Sale
Brockhall Crescent, Barton Seagrave, Kettering - £280,000

Bed icon  3  Bath icon  1  Reception icon


What's great...

This stunning three-storey house situated on the popular Bertone Manor estate is this spacious and modern family home.

The property has been much improved by the current owner to included, fitted wardrobes to the master bedroom which provide ample of storage, fitted blinds throughout the property, newly laid patio and redesigned front garden.

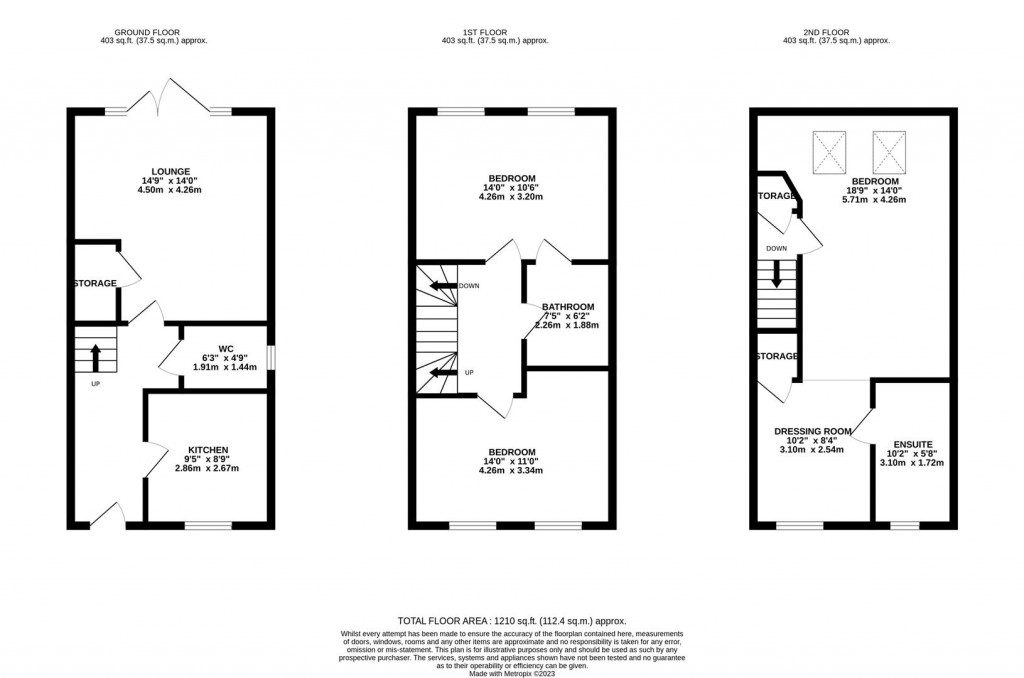
As you enter the house, you are greeted by a welcoming hallway that leads to a spacious lounge/diner, which is perfect for relaxing and entertaining, with patio doors leading onto the rear garden.

The modern and fully equipped kitchen is located to the front of the property with a range of integrated appliances, The ground floor also features a convenient WC and handy storage cupboard.

On the first floor, there are two generously sized double bedrooms, with a Jack and Jill style bathroom.

The master suite is located on the top floor, the bedroom is spacious and filled with natural light, with plenty of built in wardrobes and a dressing area, to complete the master bedroom you also have a large ensuite.

Outside you have parking to the side of the property and enclosed rear garden with patio and decking areas.

Please call Oscar James to arrange a viewing.

Image of tom with his camera

Benefit from our professional
marketing package

Redkey office

For further details on this 3 bed House - Semi-Detached For Sale in Kettering, call
01536 415 777
Ref: 34327182

ARRANGE A VIEWING

Book a viewing or enquire about this property

Simply fill out the form below or alternatively call us on 01604 622 722 Ref: 34327182