5 bed House - Detached Sold Subject to Contract
Sulgrave Street, Barton Seagrave, Kettering - Offers In Excess Of £500,000

Bed icon  5  Bath icon  3  Reception icon


What's great...

This three storey, Barratt stone built property has incredible, versatile and generous living space as well as its FIVE large bedrooms. The added extra of a stunning extension provides a superb open plan dining/family room to the rear of the kitchen making this the real hub of the home.

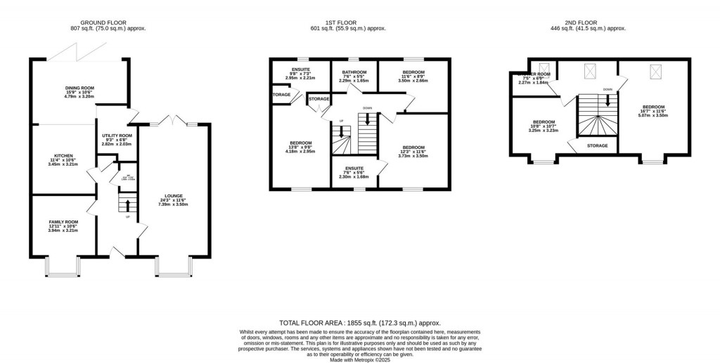
To detail the accommodation, on the ground floor expect to find a large entrance hall with built in storage under the stairs, storage cupboard, cloakroom and doors leading to a spacious front to back lounge with bay window to front and French doors to rear. A separate dining room or play room depending on preference and the bright and now generously sized kitchen, dining room/family room and utility room.

To the first floor there are three of the bedrooms, the master with four piece ensuite, a guest room also with ensuite, bedroom five and a family bathroom. The second floor has a large landing area leading to two double bedrooms, storage cupboard and a bathroom.

Other benefits internally include, bi folding doors and vaulted ceiling with sky lights to the rear kitchen extension, integrated appliances in the kitchen and solid wooden walnut worktops, fitted wardrobes in the master bedroom, bedroom three and five, two bathrooms as well as two ensuites and the ground floor cloakroom and dual zone central heating. Outside there is a double garage with ample parking in front for at least four vehicles.

The garden space to the is especially charming given its privacy to the rear, enclosed on all sides and established with trees, shrubs, laid to lawn, large garden shed and patio area. It really is a lovely space to relax and entertain. To the front wrought iron railings surround the shrubbery enclosing the front with gated access to the front and side.

Call the delighted sole agents Oscar James Kettering to make arrangements to view.

Image of tom with his camera

Benefit from our professional
marketing package

Redkey office

For further details on this 5 bed House - Detached Sold Subject to Contract in Kettering, call
01536 415 777
Ref: 34327485

ARRANGE A VIEWING

Book a viewing or enquire about this property

Simply fill out the form below or alternatively call us on 01604 622 722 Ref: 34327485