4 bed House - Detached Sold Subject to Contract
Spencer Street, Ringstead - Offers Over £500,000

Bed icon  2  Bath icon  1  Reception icon


What's great...

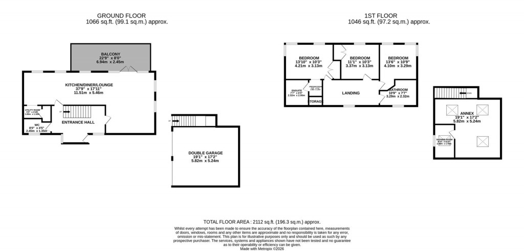
Located in the charming village of Ringstead, Kettering, this exquisite four-bedroom detached house offers a unique blend of modern living and natural beauty. Constructed approximately 16 years ago by the previous owners, the property is presented in excellent decorative order, making it an ideal family home.

The heart of this residence is the expansive open-plan kitchen, dining, and living area, which is bathed in natural light and features double doors that lead out onto a raised terrace. This seamless connection to the outdoors enhances the living experience, allowing for delightful views of the private rear garden and the adjacent woodland. The Log Burning stove that heats the open living area, making the space cosy and inviting. The garden itself is a haven for gardening enthusiasts, boasting terraced areas for vegetables and well-stocked raised beds, BBQ and seating areas, alongside a lovely decked terrace perfect for al fresco dining.

The property also includes a double detached garage, complete with two doors and external stairs leading to a versatile first-floor space, ideal for an office or a separate annex with it's own en-suite. The approach to the home is equally appealing, with a gravelled driveway providing ample off-road parking and a low-maintenance garden adorned with architectural shrub planting.

Inside, the property features a welcoming porch that opens into a hallway with a convenient downstairs WC. The kitchen is well-equipped with ample storage, a built-in appliances, a large island. The first floor comprises three generously sized bedrooms, all with built-in storage, including a master bedroom (**with a dressing room**) and en-suite shower room, complemented by a further family bathroom.

Additional highlights include wood flooring, underfloor heating throughout, an air source heat pump for winter warmth and summer cooling, rainwater harvesting and a wood-burning stove in the living area.

Image of tom with his camera

Benefit from our professional
marketing package

Redkey office

For further details on this 4 bed House - Detached Sold Subject to Contract in Ringstead, call
01536722222
Ref: 34415289

ARRANGE A VIEWING

Book a viewing or enquire about this property

Simply fill out the form below or alternatively call us on 01536 722 222 Ref: 34415289