3 bed Apartment For Sale
Bridewell Lane, Kettering - Offers In Excess Of £170,000

Bed icon  1  Bath icon  1  Reception icon


What's great...

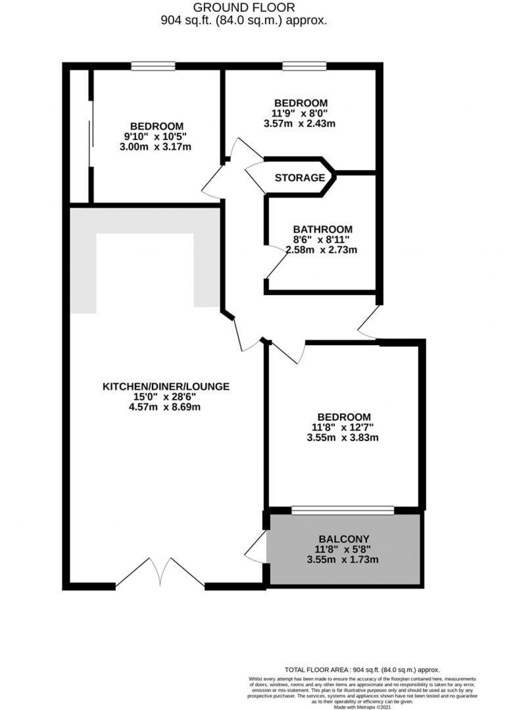
A rare find! This impressive and spacious THREE bedroom first floor apartment with BALCONY is situated in the heart of Kettering Town Centre, close to the train station and shops and is offered to market with NO ONWARD CHAIN.

Expect to find a welcoming hallway with storage cupboard, which leads to three bedrooms, two very generously sized doubles and a good size single which could easily be used as a home office alternatively. The four piece bathroom with separate shower, bath, vanity sink unit and heated towel rail again is spacious and a fabulous, large open plan kitchen/diner/lounge room with access to a superb balcony completes the accommodation.

Other benefits include UPVc double glazing and integrated appliances in the kitchen including fridge/freezer, dishwasher, oven, hob, extractor and washing machine.

Call sole selling agents Oscar James Kettering to make arrangements to view asap!

Image of tom with his camera

Benefit from our professional
marketing package

Redkey office

For further details on this 3 bed Apartment For Sale in Kettering, call
01536 415 777
Ref: 34429386

ARRANGE A VIEWING

Book a viewing or enquire about this property

Simply fill out the form below or alternatively call us on 01604 622 722 Ref: 34429386