2 bed Apartment Sold Subject to Contract
The Laurels, Main Street, Lubenham - Guide Price £325,000

Bed icon  2  Bath icon  1  Reception icon


What's great...

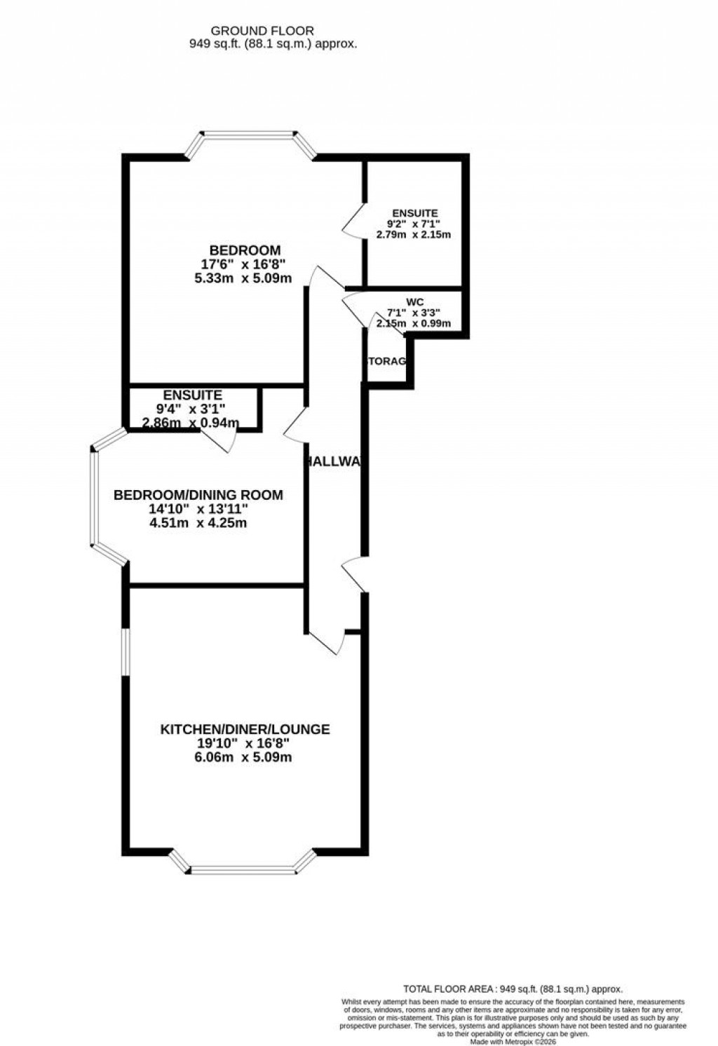
This stunning Victorian Manor House has been thoughtfully converted into four high-standard, and extremely spacious apartments. This particular residence boasts two well-appointed bedrooms, each featuring its own en-suite shower room equipped with underfloor heating, ensuring comfort and luxury.

As you enter, you are welcomed into a fantastic open-plan kitchen and living room, designed to maximise space and light. The kitchen is fitted with a stylish island, perfect for both cooking and entertaining. Throughout the property you will find breath taking countryside views that stretch for miles, creating a serene backdrop for everyday living.

The property benefits from two allocated parking spaces plus further, ample off-road parking, making it convenient for residents and guests alike. The vast communal gardens provide a lovely outdoor space for relaxation and socialising, enhancing the sense of community within this exquisite development.

This apartment combines the charm of Victorian architecture with modern amenities, making it an ideal choice for those seeking a blend of historical elegance and contemporary living. Whether you are a first-time buyer or looking to downsize, this property offers a unique opportunity to reside in a picturesque setting with all the comforts of modern life.

Viewings are strongly advised to appreciate this unique and high standard property.

Image of tom with his camera

Benefit from our professional
marketing package

For further details on this 2 bed Apartment Sold Subject to Contract in Lubenham, call
01858 458 458
Ref: 34452505

ARRANGE A VIEWING

Book a viewing or enquire about this property

Simply fill out the form below or alternatively call us on 01858 458 458 Ref: 34452505