3 bed House - Mid Terrace Sold Subject to Contract
Goodwood Close, Corby - £170,000

Bed icon  2  Bath icon  1  Reception icon


What's great...

Buy-To-Let Opportunity ~ Long Term Tenant Currently In Situ ~ Calling All Landlords!

This property is offered as a great prospective rental investment with a current long-term tenant in situ.
The three bedroom terrace property in the popular Oakley Vale residential area sits just a stones throw away from great schooling options, local shops & cafes amongst other amenities too.

The property has been priced to sell and reflect excellent value for money in a great area. Condition-wise the property could benefit from refurbishment works.

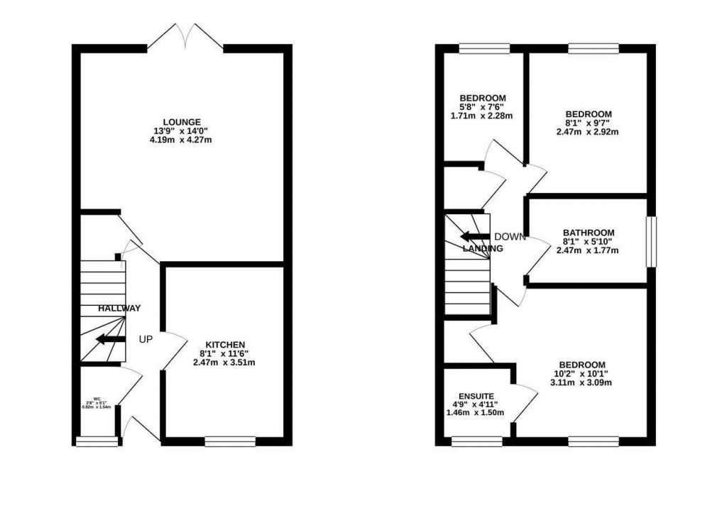
Upon entry the entrance hall leads to the kitchen, lounge, and a downstairs WC. The kitchen has a range of wall and base units. Upstairs there is three bedrooms, as well as a main family bathroom and ensuite shower room to main bedroom.

Externally the property benefits from a private rear garden and allocated off road parking.

Viewing is Highly recommended! Contact the team at Oscar James Corby for further details!

Image of tom with his camera

Benefit from our professional
marketing package

For further details on this 3 bed House - Mid Terrace Sold Subject to Contract in Corby, call
01536 400 900
Ref: 34459742

ARRANGE A VIEWING

Book a viewing or enquire about this property

Simply fill out the form below or alternatively call us on 01536 400 900 Ref: 34459742