3 bed House - Semi-Detached Sold Subject to Contract
Cedar Way, Wellingborough - £240,000

Bed icon  2  Bath icon  2  Reception icon


What's great...

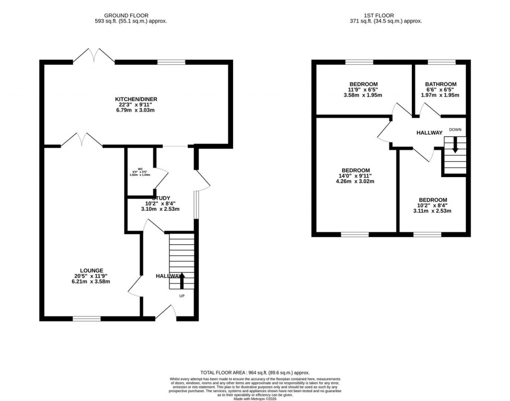
Nestled in the desirable Cedar Way, Wellingborough, this charming semi-detached house offers a perfect blend of comfort and modern living. With three well-proportioned bedrooms, this property is ideal for families seeking a welcoming home in a sought-after school catchment area.

Upon entering, you are greeted by a spacious open lounge diner, providing an inviting space for relaxation and entertaining. The rear extension has created a generous kitchen/diner, perfect for family meals and gatherings. The ground floor also features a convenient downstairs WC, adding to the practicality of the layout.

The first floor comprises three comfortable bedrooms, each offering ample space for personalisation. The family bathroom is well-appointed, catering to the needs of the household.

Outside, the property benefits from off-road parking, ensuring convenience for residents and visitors alike. The cul-de-sac location enhances the appeal, providing a peaceful environment while still being close to local amenities.

This semi-detached house on Cedar Way is a wonderful opportunity for those looking to settle in a friendly community with excellent schooling options. With its spacious interiors and prime location, it is a must-see for prospective buyers.

Image of tom with his camera

Benefit from our professional
marketing package

For further details on this 3 bed House - Semi-Detached Sold Subject to Contract in Wellingborough, call
01933 830 300
Ref: 34460542

ARRANGE A VIEWING

Book a viewing or enquire about this property

Simply fill out the form below or alternatively call us on 01933 830 300 Ref: 34460542