3 bed Apartment Let Agreed
King Street, Kettering - Per Month £1,000pcm
(fees apply)

Bed icon  1  Bath icon  1  Reception icon


What's great...

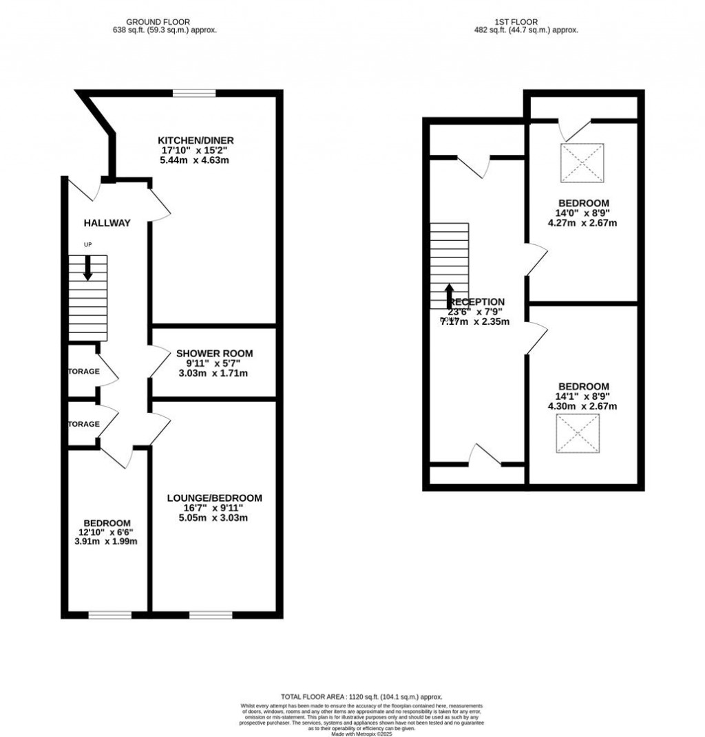
Nestled in the heart of Kettering, we have this three-bedroom apartment. thoughtfully converted and spanning over two floors, providing ample room for families or those seeking extra space.

Situated on King Street, you will enjoy the convenience of Kettering's vibrant amenities right at your doorstep, including shops, restaurants, and transport links. This property is a rare find, combining character, space, and a prime location.

As you enter through the hallway, you have a wrap-around kitchen, complete with built-in appliances. The ground floor features a comfortable lounge and one single bedroom, alongside a well-appointed family bathroom that includes a convenient shower cubicle.

To the first floor, you will find an open plan landing enhanced by a Velux window that floods the space with natural light. This floor also boasts two further double bedrooms.

Additionally, the apartment comes with allocated parking for one vehicle, a valuable asset in a town centre location.

*** AVAILABLE NOW ***

Council Tax Band: C
EPC Rating: D

Image of tom with his camera

Benefit from our professional
marketing package

Redkey office

For further details on this 3 bed Apartment Let Agreed in Kettering, call
01536 415 777
Ref: 34474330

ARRANGE A VIEWING

Book a viewing or enquire about this property

Simply fill out the form below or alternatively call us on 01604 622 722 Ref: 34474330