3 bed House - Detached To Let
The Avenue, Rothwell - Per Month £1,350pcm
(fees apply)

Bed icon  2  Bath icon  3  Reception icon


What's great...

A stunning period home with the definite WOW factor!

We are delighted to offer this fantastic DETACHED property which has been extensively improved internally making it a trendy and modern home with plenty of space both downstairs and up.

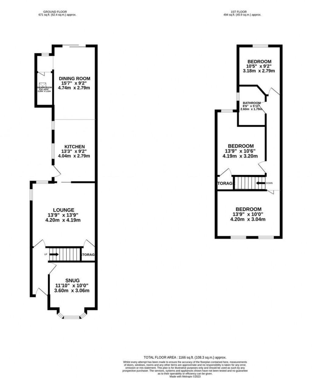
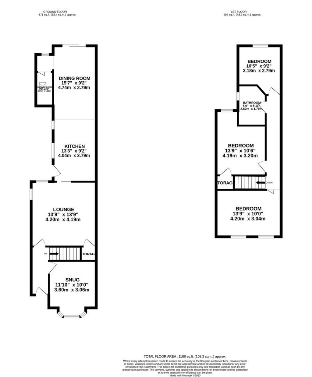
The ground floor accommodation consists of an entrance hall with original mosaic tiling, a cosy and beautifully decorated snug room to the front boasting exposed floorboards, bay window and feature fireplace. To the rear there is an additional reception room which is dual aspect, boasting parquet flooring, and gives access to the spacious kitchen/diner/family room with patio doors leading out the garden. The kitchen has a country feel with space for white goods, plenty of storage and space for a large dining table making this the real hub of the home. In addition, on the ground floor there is a storage area and shower room with WC and sun tunnel.

Upstairs to the first floor, all three bedrooms are large doubles and the family bathroom is an excellent size with bath and shower over, and with an exposed chimney breast feature wall.

Outside there is a courtyard area to the front and gated access to the rear. The back garden is a great size, fully enclosed, sunny, mainly laid to lawn with seating areas, flower beds and shrub boarders.

*** Offered to the market PART FURNISHED and AVAILBLE APRIL ***

Council Tax Band: C
EPC Rating: D

Image of tom with his camera

Benefit from our professional
marketing package

Redkey office

For further details on this 3 bed House - Detached To Let in Rothwell, call
01536 415 777
Ref: 34512158

ARRANGE A VIEWING

Book a viewing or enquire about this property

Simply fill out the form below or alternatively call us on 01604 622 722 Ref: 34512158