2 bed House - Detached Sold Subject to Contract
West Way, Kettering - Offers In Excess Of £300,000

Bed icon  2  Bath icon  2  Reception icon


What's great...

A unique and stunning home with so much to offer it must be viewed to be appreciated!

Situated in a very popular location, ideal for the main road links, Kettering General Hospital and the train station this extended and renovated detached home will make a wonderful new residence for someone new, maybe looking to downsize for buy for the first time.

Situated on a generous corner plot with a five bar gate and gardens to the front as well as to the rear this detached two bedroom home provides ample space to relax both inside and out.

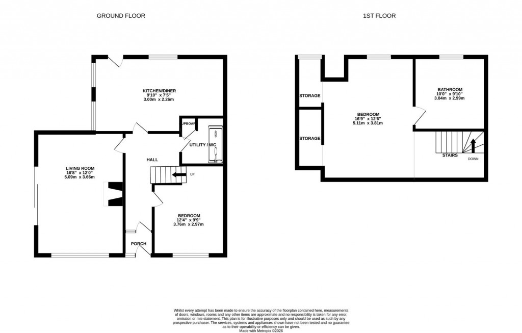
In brief the accommodation comprises of an entrance hall with feature front door, stairs rising to the first floor, a double bedroom on the ground floor, cloakroom which doubles up as a utility space, a gorgeous lounge room with feature fireplace, beams to the ceiling and French doors that lead out to the raised and covered decking area that provides and cosy additional space to relax and entertain. Finally on the ground floor expect to find an exceptionally well presented kitchen/diner which has been refitted to a very high standard with integrated appliances and space for a dining table as well as a rear door leading out to the garden.

The first floor provides a master suite with huge bedroom area, walk in wardrobe and a spectacular four piece bathroom which really does have the WOW factor!

Outside there is off road parking to the front for two vehicles, large lawn to front and rear, established trees and the aforementioned covered decked area for entertaining.

Call the sole agents Oscar James Kettering to make arrangements to view this gorgeous property!

Image of tom with his camera

Benefit from our professional
marketing package

Redkey office

For further details on this 2 bed House - Detached Sold Subject to Contract in Kettering, call
01536 415 777
Ref: 34521016

ARRANGE A VIEWING

Book a viewing or enquire about this property

Simply fill out the form below or alternatively call us on 01604 622 722 Ref: 34521016