5 bed House - Semi-Detached For Sale
Croyland Road, Wellingborough - £475,000

Bed icon  3  Bath icon  4  Reception icon


What's great...

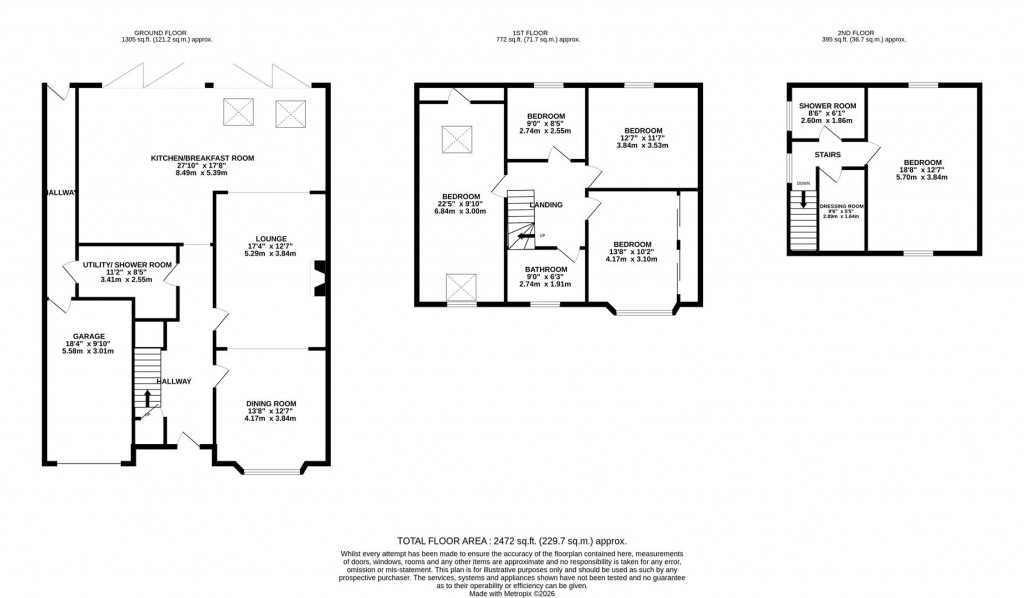
Oscar James is pleased to offer to the market this outstanding 1930's property situated in this sought after location. The property has great access to local shops, restaurants and amenities as well as being a short drive away from the town’s main line railway station. There are also good bus and road links. This deceptively large residence was extended from the original three bedrooms to this sizeable 3 storey ,5-bedroom property offering an abundance of space throughout.

On entering the property, you are greeted by a warm and airy Oak floor entrance hall which offers access to the lounge / dining room, W/c plus further access to the rear area. The bay fronted lounge/dining room offers a great space which is complimented by a cast iron log burner and a continuation of the Oak flooring. The rear addition is open plan into the main extension and opens up into a fantastic Kitchen / breakfast room. The stunning kitchen offers a selection of built in appliances and a large range of storage. The open plan breakfast room again offers a great entertaining space and the whole area benefits from underfloor heating. Stretching across the full width of the property are bi-fold doors allowing this whole area to be opened up and offering full access to the rear garden. Finally on the ground floor is the utility / shower room offering access to the garage and rear access to the garden.

To the first floor are four good size bedrooms plus the four-piece family bathroom. The second floor presents the master bedroom with an ensuite shower room plus walk in wardrobe. All rooms throughout the property are offered in excellent decorative order.

Outside to the front is a block paved driveway offering parking for 2/3 cars leading to a single garage with an EV charging point. The stunning and spacious rear garden has a large terrace leading down to the lawned area with shrub and flower beds. There is also a wooden built cabin to the rear. This stunning property is a must to be seen.

Image of tom with his camera

Benefit from our professional
marketing package

For further details on this 5 bed House - Semi-Detached For Sale in Wellingborough, call
01933 830 300
Ref: 34563157

ARRANGE A VIEWING

Book a viewing or enquire about this property

Simply fill out the form below or alternatively call us on 01933 830 300 Ref: 34563157