3 bed House - Semi-Detached Sold Subject to Contract
Rushmere Close, Islip - Price Guide £260,000

Bed icon  1  Bath icon  2  Reception icon


What's great...

** SOLD PRIOR TO MARKETING **

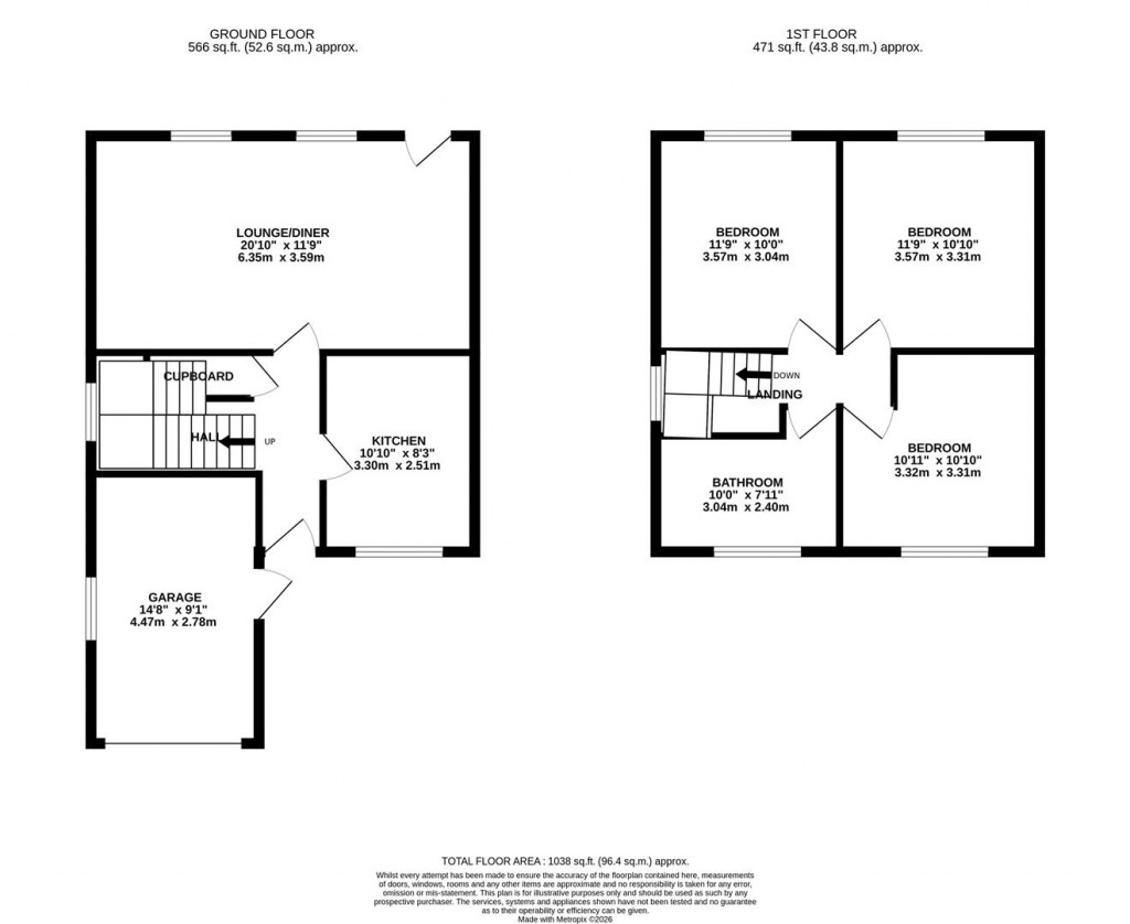
Situated in the highly desirable village of Islip, this three-bedroom semi-detached home offers excellent potential for buyers looking to modernise and create a property tailored to their own taste.

The property benefits from off-road parking and a single garage, providing convenient and practical storage or parking options. Internally, the accommodation comprises a kitchen and a spacious lounge/diner, offering a great layout for both everyday living and entertaining.

Upstairs, there are three bedrooms, including two well-proportioned double rooms and a single bedroom, along with a family bathroom.

Externally, the property boasts an ample-sized rear garden featuring a patio area, a split-level design with a retaining wall, and an outside storage shed—ideal for gardening tools or additional storage.

With its sought-after location and scope for improvement, this property presents a fantastic opportunity for buyers looking to add value in a charming village setting.

Image of tom with his camera

Benefit from our professional
marketing package

Redkey office

For further details on this 3 bed House - Semi-Detached Sold Subject to Contract in Islip, call
01536722222
Ref: 34631649

ARRANGE A VIEWING

Book a viewing or enquire about this property

Simply fill out the form below or alternatively call us on 01536 722 222 Ref: 34631649