3 bed House - End Terrace Sold Subject to Contract
Almond Road, Kettering - £240,000

Bed icon  2  Bath icon  2  Reception icon


What's great...

A very generously sized, three double bedroom end of terrace home offered to market with NO CHAIN.

Whilst the property is in need of some light refurbishment expect to find an excellent plot with plenty of off road parking to the front and a large secluded garden to the rear.

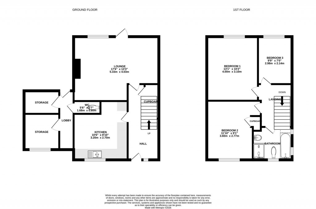
Internally the accommodation comprises of an entrance hall, kitchen, cloakroom (accessed externally), two outhouses/stores and a large, bright lounge/diner to the rear with access to the rear garden. To the first floor there are three double bedrooms and a family bathroom.

Outside, as mentioned there is plenty of off road parking, gardens front and rear, both a good size, established with trees, lawn and flower and shrub borders.

Call sole selling agents Oscar James Kettering to make arrangements to view.

Image of tom with his camera

Benefit from our professional
marketing package

Redkey office

For further details on this 3 bed House - End Terrace Sold Subject to Contract in Kettering, call
01536 415 777
Ref: 34641850

ARRANGE A VIEWING

Book a viewing or enquire about this property

Simply fill out the form below or alternatively call us on 01604 622 722 Ref: 34641850